Bénéficiez des services de nos partenaires locaux soigneusement sélectionnés
pour vous accompagner dans votre parcours d'achat immobilier

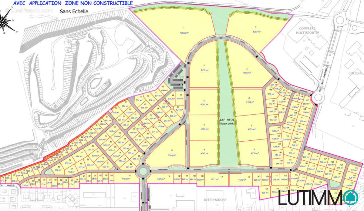
Terrain 739m² à ensisheim

— Ensisheim 68190 —
167 380 €
739 m²

Nos partenaires locaux
NOUVEAU TERRAIN - À ENSISHEIM
Lotissement « Les Rives du Lac »

Dans ce nouveau lotissement tourné vers le mieux-vivre qui offrira un cadre de vie idéal pour petits et grands, nous vous proposons un terrain de 739m² entièrement viabilisé. Il est constructible, avec la possibilité de réaliser une maison individuelle.

Nouveau quartier résidentiel situé aux bords du lac des Oréades, traversé par un « axe vert », permettant aux résidents de se promener et de se rendre au lac, ou dans les forêts alentours à pieds.

ENSISHEIM:
Situé à côté des axes autoroutiers pour rejoindre Mulhouse, Colmar, Strasbourg, l'Allemagne ou la Suisse très rapidement.

C'est une ville proche de la nature qui offre divers sentiers pédestres et pistes cyclables, mais aussi remplie d'histoire grâce à son musée.
Les écoles y sont multiples allant de la crèche au collège, avec un périscolaire.

La ville est très engagée sur l'éducation et les activités sportives, elle détient plus d'une quinzaine d'associations sportives et culturelles pour tous les goûts et tous les âges.

Référence : Lot n°158
Prix de vente : 167 380 € TTC

Contactez-nous pour plus de renseignements au [Coordonnées masquées] - [Coordonnées masquées] - LUTIMMO Agence immobilière à Sausheim (58 rue de la Hardt) - Retrouvez l'ensemble de nos biens et projets neufs en vente sur www.lutimmo.fr

Honoraires à la charge du vendeur. Les informations sur les risques auxquels ce bien est exposé sont disponibles sur le site Géorisques : georisques.gouv.fr.

Retrouvez l'annonce de l'agence immobilière LUTIMMO sur : https://www.lutimmo.fr/ref/VT635
Voir plus

Référence: VT635-LUTIMMO
Honoraires à la charge du vendeur.
Barème des honoraires

Prêt immobilier

Vous souhaitez connaître votre capacité d’emprunt et trouver le meilleur crédit immobilier ?
Réaliser une simulation gratuite

Terrain à ENSISHEIM
Terrain à ENSISHEIM
Terrain à ENSISHEIM
Ce site est protégé par reCAPTCHA la Politique de confidentialité et les Conditions d’utilisation de Google s’appliquent.
Obtenir un prêt immobilier au meilleur taux ?

En poursuivant votre navigation sans modifier vos paramètres, vous acceptez l'utilisation de cookies susceptibles de réaliser des statistiques de visite. Cliquez ici pour plus d'informations