Bénéficiez des services de nos partenaires locaux soigneusement sélectionnés
pour vous accompagner dans votre parcours d'achat immobilier

Voir tous les partenaires locaux

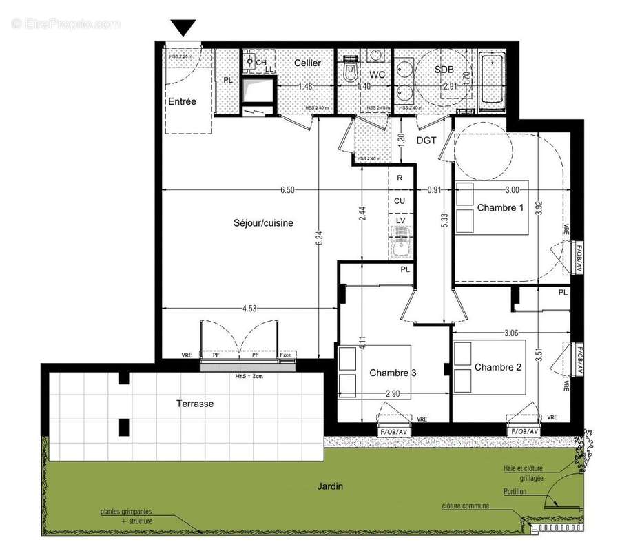
Appartement 88m² à bordeaux

— Bordeaux 33000 —
400 000 €
88 m²
4 pièces
parkingbalcon/terrasseascenseuraccès handicapé

Nos partenaires locaux
Sous compromis : UN LIEU DE VIE CALME ET ARBORÉ PROCHE DE TOUTES LES COMMODITÉS

Situé dans une résidence à taille humaine et bénéficiant d'un emplacement très prisé (parc et commerces de proximité), venez découvrir ce superbe T4 ouvert sur sa belle terrasse, surplombant la nature environnante.

Cet appartement d'une surface de 87,30m² carrez se compose d'une entrée avec cellier pour le lave linge et placard de rangement. On trouve ensuite une belle pièce de vie lumineuse de plus de 37m2 ouvert sur une terrasse de plus ensoleillée. Coté nuit, on retrouve trois belles chambres avec placard ainsi qu'une salle de bain double vasque et un wc indépendant.

Très intimiste, la résidence vise à donner un confort de vie à ses habitants avec un environnement calme, une proximité directe avec toutes les commodités, les parcs et les transports et des prestations intérieures haut de gamme faisant de ces appartements, des lieux de vie paisibles.

Vous trouverez en complément 2 places de parking sécurisées en sus.

UN LIEU DE VIE CALME ET ARBORÉ PROCHE DE TOUTES LES COMMODITÉS

Honoraires à la charge du vendeur. Dans une copropriété de 26 lots. Aucune procédure n'est en cours. DPE en cours. Les informations sur les risques auxquels ce bien est exposé sont disponibles sur le site Géorisques : georisques.gouv.fr. Ce bien vous est proposé par un agent commercial (Entreprise individuelle).

Votre conseiller RH Patrimoine : Maxime HERVE
Agent commercial (Entreprise individuelle)
RSAC 133095555 J
RCP 13309666 J
Voir plus

Référence: VA2481-RHPATRI
Bien en copropriété. Nombre de lots : 26.
Honoraires à la charge du vendeur.
Barème des honoraires

Prêt immobilier

Vous souhaitez connaître votre capacité d’emprunt et trouver le meilleur crédit immobilier ?
Réaliser une simulation gratuite

Appartement à BORDEAUX
Appartement à BORDEAUX
Appartement à BORDEAUX
Appartement à BORDEAUX
Appartement à BORDEAUX
Appartement à BORDEAUX
Appartement à BORDEAUX
Appartement à BORDEAUX
Ce site est protégé par reCAPTCHA la Politique de confidentialité et les Conditions d’utilisation de Google s’appliquent.
Obtenir un prêt immobilier au meilleur taux ?

En poursuivant votre navigation sans modifier vos paramètres, vous acceptez l'utilisation de cookies susceptibles de réaliser des statistiques de visite. Cliquez ici pour plus d'informations