Bénéficiez des services de nos partenaires locaux soigneusement sélectionnés
pour vous accompagner dans votre parcours d'achat immobilier

Commerce 274m² à saint-etienne

— Saint-Etienne 42000 —
262 500 €
274 m²
6 pièces

Nos partenaires locaux
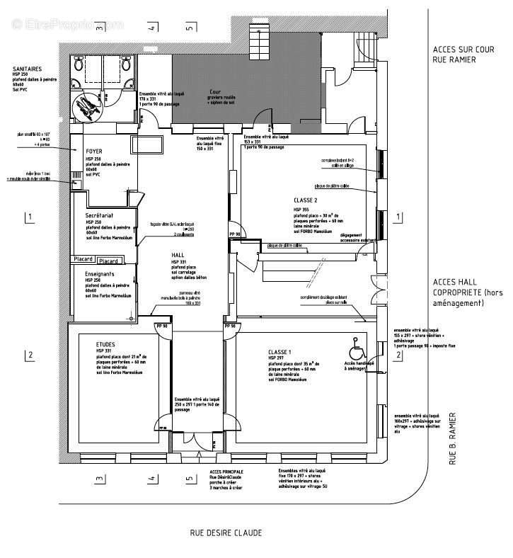
Idéal investisseur, local à usage de bureaux à vendre avec locataire en place.
Locaux entièrement refaits à neuf, aux normes PMR et ERP, d'une surface de 270m2 environ, en centre Ville de Saint Etienne.
Loyers annuels de 23000 euros HC Hors Foncier.

Locaux composés de 5 bureaux, un espace pour le personnel avec une cuisine équipée et une cour de 48 m2 couverte, loués à un organisme de formation.
Contactez l'agence pour tous renseignements complémentaires ou pour organiser une visite.

Honoraires inclus de 5% à la charge de l'acquéreur. Prix hors honoraires 250 000 €. Dans une copropriété de 4 lots. Aucune procédure n'est en cours. Classe énergie C, Classe climat C. Les informations sur les risques auxquels ce bien est exposé sont disponibles sur le site Géorisques : georisques.gouv.fr.

Votre conseiller Cabinet Mérieux : Conseil en immobilier pro - Vincent Geoffroy.
Documents et photos non contractuels susceptibles d'évolutions au fil de la commercialisation.
Voir plus

Référence: VP515-MMC
Bien en copropriété. Nombre de lots : 4.
Honoraires d'agence de 5% à la charge de l'acquéreur
DPE
A
B
C
D
E
F
G
GES
A
B
C
D
E
F
G

Prêt immobilier

Vous souhaitez connaître votre capacité d’emprunt et trouver le meilleur crédit immobilier ?
Réaliser une simulation gratuite

Commerce à SAINT-ETIENNE
Commerce à SAINT-ETIENNE
Commerce à SAINT-ETIENNE
Commerce à SAINT-ETIENNE
Commerce à SAINT-ETIENNE
Ce site est protégé par reCAPTCHA la Politique de confidentialité et les Conditions d’utilisation de Google s’appliquent.
Obtenir un prêt immobilier au meilleur taux ?

En poursuivant votre navigation sans modifier vos paramètres, vous acceptez l'utilisation de cookies susceptibles de réaliser des statistiques de visite. Cliquez ici pour plus d'informations