Bénéficiez des services de nos partenaires locaux soigneusement sélectionnés
pour vous accompagner dans votre parcours d'achat immobilier

Levallois-perret - planchette - à vendre

— Levallois-Perret 92300 —
605 000 €
67 m²
3 pièces
balcon/terrasseascenseur

Nos partenaires locaux
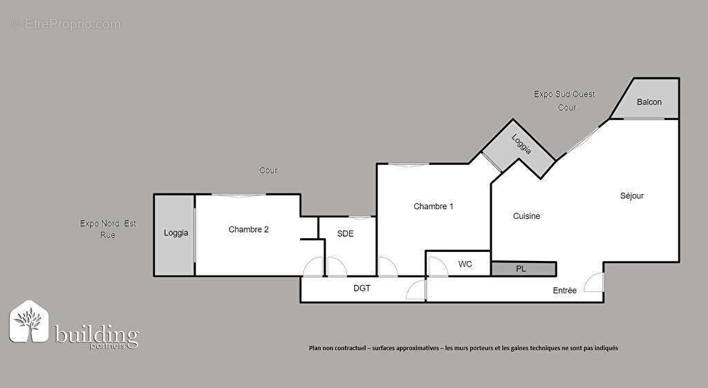
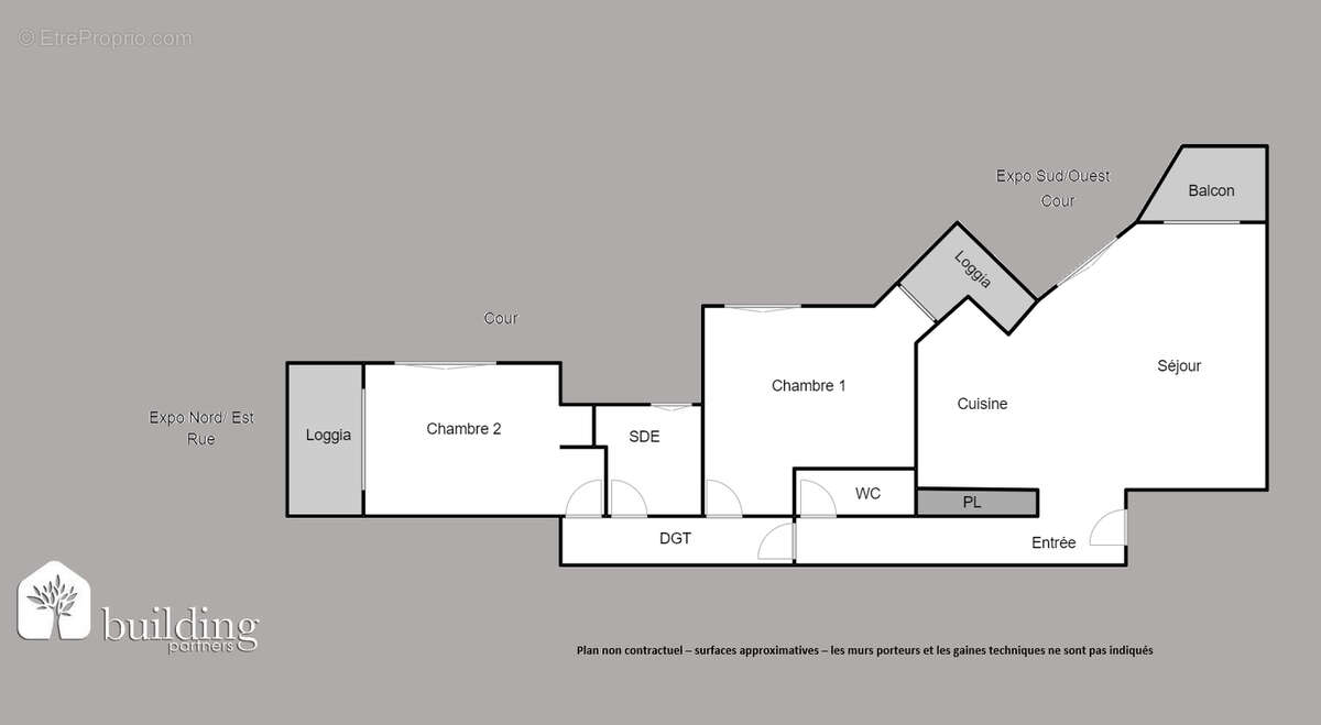
Appartement type 3 pièces de 67m² situé au 1er étage d'un immeuble récent de bon standing. Ce bien se compose d'une entrée, un séjour donnant accès à une terrasse, une cuisine américaine aménagée-équipée, un jardin d'hiver, deux chambres dont une donnant accès à un balcon. Une salle d'eau et un WC séparé. Appartement en excellent état, avec un bon agencement sans perte d'espace. Calme et lumineux, il est à proximité immédiate des transports (métro ligne 3) et des commerces. Un box est disponible en SUS pour 30.000 euros. Charges annuelles : 1748.56 euros. Prix de Vente : 635.000 euros dont honoraires à la charge du vendeur. Pas de procédure en cours. DPE : C La vente d'un bien immobilier n'est pas la fin de quelque chose. Au contraire c'est le début d'une nouvelle histoire. Et pour que cette histoire soit belle, il faut qu'elle commence bien. Voilà la mission de nos équipes. Créé en 1993, le groupe BUILDING PARTNERS offre le savoir-faire et l'accompagnement des plus prestigieuses agences traditionnelles, tout en proposant les outils digitaux les plus performants pour assurer une vente rapide et au meilleur prix. Pour cela nous avons développé une importante gamme de services qui permettent d'offrir à nos clients une prestation sur mesure : deux photographes et un vidéaste professionnel, la réalisation de plans, la visite virtuelle en 3D, le home-staging, la communication ciblée ou encore le off-market. En quelques chiffres, BUILDING PARTNERS c'est 100 nouveaux biens à vendre chaque mois et 300 ventes par an ! Les informations sur les risques auxquels ce bien est exposé sont disponibles sur le site Géorisques : www.georisques.gouv.fr Copropriété de 141 lots - dont 70 lots habitation. (Pas de procédure en cours). Charges annuelles : 1748.56 euros.
Voir plus

Référence: AV
Bien en copropriété. Nombre de lots : 141. Charges de copropriété : 1748 €.
Honoraires à la charge du vendeur.
Barème des honoraires
DPE
A
B
C
D
E
F
G
GES
A
B
C
D
E
F
G

Prêt immobilier

Vous souhaitez connaître votre capacité d’emprunt et trouver le meilleur crédit immobilier ?
Réaliser une simulation gratuite

Appartement à LEVALLOIS-PERRET
Appartement à LEVALLOIS-PERRET
Appartement à LEVALLOIS-PERRET
Appartement à LEVALLOIS-PERRET
Appartement à LEVALLOIS-PERRET
Appartement à LEVALLOIS-PERRET
Appartement à LEVALLOIS-PERRET
Appartement à LEVALLOIS-PERRET
Appartement à LEVALLOIS-PERRET
Appartement à LEVALLOIS-PERRET
Appartement à LEVALLOIS-PERRET
Appartement à LEVALLOIS-PERRET
Appartement à LEVALLOIS-PERRET
Appartement à LEVALLOIS-PERRET
Appartement à LEVALLOIS-PERRET
Appartement à LEVALLOIS-PERRET
Appartement à LEVALLOIS-PERRET
Appartement à LEVALLOIS-PERRET
Ce site est protégé par reCAPTCHA la Politique de confidentialité et les Conditions d’utilisation de Google s’appliquent.
Obtenir un prêt immobilier au meilleur taux ?

En poursuivant votre navigation sans modifier vos paramètres, vous acceptez l'utilisation de cookies susceptibles de réaliser des statistiques de visite. Cliquez ici pour plus d'informations