Bénéficiez des services de nos partenaires locaux soigneusement sélectionnés
pour vous accompagner dans votre parcours d'achat immobilier

Au pied du château d'amboise

— Amboise 37400 —
360 125 €
54 m²
1 pièce

Nos partenaires locaux
Emplacement no1 !

Situé rue de la concorde, nous vous présentons ce programme immobilier qui correspondra sans aucun doute à votre futur investissement locatif. Il vous offrira une rénovation de qualité avec de beaux matériaux. Eligible au dispositif Malraux, où vous pouvez bénéficier d'une déduction fiscale.
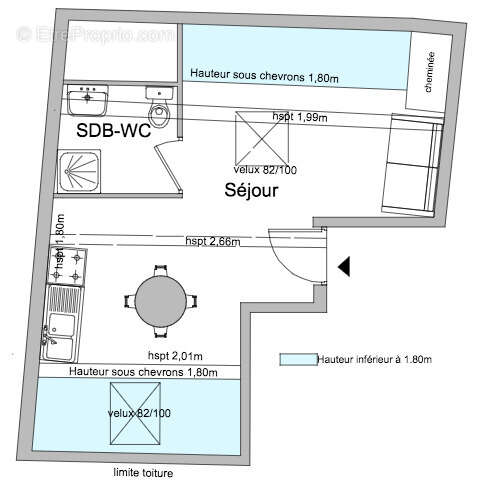
Cette annonce correspond au lot no4, d'une superficie de 53,50 m2 en loi Carrez, et proposant une cuisine, un séjour, deux chambres, une salle d'eau, un wc.


D'autres lots sont disponibles, allant du studio aux Type 3.

Appelez-nous pour plus d'informations !

Les informations sur les risques auxquels ce bien est exposé sont disponibles sur le site Géorisques :www.georisques.gouv.fr

360 125 € Honoraires d'agence inclus soit 335 000 € hors honoraires d'agence et 7,50 % d'honoraires Toutes Taxes Comprises à la charge de l'acquéreur. Contactez votre French Conseillère, Chloé LAPOUYADE au [Coordonnées masquées] ou à l'adresse [Coordonnées masquées] - Agent commercial EI immatriculé au RSAC de Tours sous le numéro 2021AC00119. - Annonce rédigée et publiée par un Agent Mandataire - - Annonce rédigée et publiée par un Agent Mandataire -
Voir plus

Référence: 4
Bien en copropriété. Nombre de lots : 7.
Honoraires d'agence de 7.5% à la charge de l'acquéreur

Prêt immobilier

Vous souhaitez connaître votre capacité d’emprunt et trouver le meilleur crédit immobilier ?
Réaliser une simulation gratuite

Appartement à AMBOISE
Appartement à AMBOISE
Ce site est protégé par reCAPTCHA la Politique de confidentialité et les Conditions d’utilisation de Google s’appliquent.
Obtenir un prêt immobilier au meilleur taux ?

En poursuivant votre navigation sans modifier vos paramètres, vous acceptez l'utilisation de cookies susceptibles de réaliser des statistiques de visite. Cliquez ici pour plus d'informations