Bénéficiez des services de nos partenaires locaux soigneusement sélectionnés
pour vous accompagner dans votre parcours d'achat immobilier

Maison 4 chambres conches

— Conches-En-Ouche 27190 —
220 000 €
120 m² / 650 m²
5 pièces
parkingbalcon/terrassejardin

Nos partenaires locaux
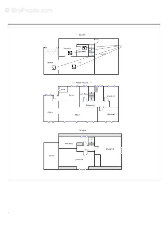
REF 4698. Située à pied des commerces et écoles de Conches, au calme, maison familiale offrant 4 chambres et sous sol complet avec garage sur un terrain de 700 m2.

Exposée Est-Ouest, la maison vivable de plain pied se compose au rdc d'une entrée, une cuisine séparée lumineuse, un double séjour parqueté avec insert et accès terrasse plein ouest, un couloir distribuant deux chambres sur parquet, une salle d'eau, WC séparé et accès au sous sol. A l'étage, deux chambres, une salle d'eau avec WC et grenier. Sous-sol total dont une partie garage. Chauffage par PAC air/eau. Isolation des murs par l'extérieur récente. Raccordée au tout à l'égout. Fibre déployée. Travaux de rafraichissement à prévoir.
Voir plus

Référence: 4698
Honoraires à la charge du vendeur.
Barème des honoraires
DPE
A
B
C
D
E
F
G
GES
A
B
C
D
E
F
G

Prêt immobilier

Vous souhaitez connaître votre capacité d’emprunt et trouver le meilleur crédit immobilier ?
Réaliser une simulation gratuite

Maison à CONCHES-EN-OUCHE
Maison à CONCHES-EN-OUCHE
Maison à CONCHES-EN-OUCHE
Maison à CONCHES-EN-OUCHE
Maison à CONCHES-EN-OUCHE
Maison à CONCHES-EN-OUCHE
Maison à CONCHES-EN-OUCHE
Maison à CONCHES-EN-OUCHE
Maison à CONCHES-EN-OUCHE
Maison à CONCHES-EN-OUCHE
Maison à CONCHES-EN-OUCHE
Maison à CONCHES-EN-OUCHE
Maison à CONCHES-EN-OUCHE
Maison à CONCHES-EN-OUCHE
Maison à CONCHES-EN-OUCHE
Maison à CONCHES-EN-OUCHE
Maison à CONCHES-EN-OUCHE
Maison à CONCHES-EN-OUCHE
Maison à CONCHES-EN-OUCHE
Maison à CONCHES-EN-OUCHE
Maison à CONCHES-EN-OUCHE
Maison à CONCHES-EN-OUCHE
Maison à CONCHES-EN-OUCHE
Maison à CONCHES-EN-OUCHE
Maison à CONCHES-EN-OUCHE
Maison à CONCHES-EN-OUCHE
Ce site est protégé par reCAPTCHA la Politique de confidentialité et les Conditions d’utilisation de Google s’appliquent.
Obtenir un prêt immobilier au meilleur taux ?

En poursuivant votre navigation sans modifier vos paramètres, vous acceptez l'utilisation de cookies susceptibles de réaliser des statistiques de visite. Cliquez ici pour plus d'informations