Pas de appartement à L'huisserie pour le moment. Découvrez dès maintenant les appartements dans le département Mayenne.
Bénéficiez des services de nos partenaires locaux soigneusement sélectionnés
pour vous accompagner dans votre parcours d'achat immobilier

Local professionnel carcassonne

— Carcassonne 11000 —
124 000 €
114 m²

Nos partenaires locaux
L'agence HOME FOR LIFE IMMOBILIER vous propose un local professionnel idéal pour un regroupement de professions libérales.
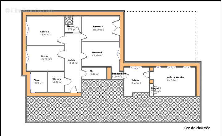
Ce bien dispose d'une surface totale de 114 m2, comprenant 4 bureaux, une salle de réunion, une cuisine (salle de pause), deux WC dont un accessible PMR, ainsi que deux places de parking privatives.
Situé sur un boulevard passant de Carcassonne, à proximité du centre-ville, du Palais de Justice et des transports en commun.
Actuellement loué avec un bail de droit commun qui prendra fin en mars 2025.
Pour toute information complémentaire, n'hésitez pas à nous contacter.
Voir plus

Honoraires à la charge du vendeur.
Barème des honoraires
DPE
A
B
C
D
E
F
G
GES
A
B
C
D
E
F
G

Prêt immobilier

Vous souhaitez connaître votre capacité d’emprunt et trouver le meilleur crédit immobilier ?
Réaliser une simulation gratuite

Commerce à CARCASSONNE
Commerce à CARCASSONNE
Commerce à CARCASSONNE
Commerce à CARCASSONNE
Commerce à CARCASSONNE
Commerce à CARCASSONNE
Commerce à CARCASSONNE
Commerce à CARCASSONNE
Commerce à CARCASSONNE
Commerce à CARCASSONNE
Commerce à CARCASSONNE
Commerce à CARCASSONNE
Ce site est protégé par reCAPTCHA la Politique de confidentialité et les Conditions d’utilisation de Google s’appliquent.
Obtenir un prêt immobilier au meilleur taux ?

En poursuivant votre navigation sans modifier vos paramètres, vous acceptez l'utilisation de cookies susceptibles de réaliser des statistiques de visite. Cliquez ici pour plus d'informations