Bénéficiez des services de nos partenaires locaux soigneusement sélectionnés
pour vous accompagner dans votre parcours d'achat immobilier

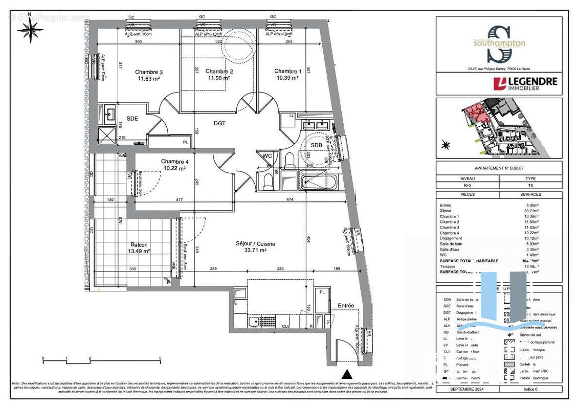
Appartement 104m² à le havre

— Le Havre 76600 —
543 000 €
104 m²
5 pièces
parkingbalcon/terrasseascenseuraccès handicapé

Nos partenaires locaux
***NOUVEAUTÉ***

LE HAVRE - LES GOBELINS

APPARTEMENT NEUF (VEFA) DE 104 M² EN PLEIN COEUR DU CENTRE-VILLE
ASCENSEUR - STATIONNEMENTS ATTITRÉS - LMNP & PTZ

Situé au coeur du quartier des Gobelins, a proximité immédiate des commerces et des écoles nous vous proposons à la vente dans une résidence de prestige alliant sobriété et modernité ce superbe appartement sur plan de 104 m². Il bénéficie d'une entrée avec placards, d'un grand séjour/salon (34 m²) donnant un accès direct à un balcon exposé ouest, pour profiter des derniers rayons de soleil. Une cuisine à aménager selon vos goûts, une salle de bains avec une baignoire, quatre chambres et des toilettes indépendants. Deux places de stationnement attitrées, un emplacement deux roues et une cave complètent ce bien.
Avec cet appartement, vous bénéficierez d'équipements et d'aménagements récents avec la possibilité de choisir les finitions et d'aménager selon vos goûts, un financement avantageux avec un prêt à taux zéro, des frais de notaires réduits et de bonnes performances énergétiques. De nombreux espaces verts entourent la résidence.
La livraison est prévue au mois de mars 2027.

RARE



Honoraires à la charge du vendeur. Dans une copropriété de 40 lots. Aucune procédure n'est en cours. Classe énergie A, Classe climat A Montant moyen estimé des dépenses annuelles d'énergie pour un usage standard, établi à partir des prix de l'énergie de l'année 2021 : entre 50.00 et 50.00 €. Les informations sur les risques auxquels ce bien est exposé sont disponibles sur le site Géorisques : georisques.gouv.fr.
Voir plus

Référence: A822-ERICRENARD
Bien en copropriété. Nombre de lots : 40.
Honoraires à la charge du vendeur.
Barème des honoraires
DPE
A
B
C
D
E
F
G
GES
A
B
C
D
E
F
G

Prêt immobilier

Vous souhaitez connaître votre capacité d’emprunt et trouver le meilleur crédit immobilier ?
Réaliser une simulation gratuite

Appartement à LE HAVRE
Appartement à LE HAVRE
Ce site est protégé par reCAPTCHA la Politique de confidentialité et les Conditions d’utilisation de Google s’appliquent.
Obtenir un prêt immobilier au meilleur taux ?

En poursuivant votre navigation sans modifier vos paramètres, vous acceptez l'utilisation de cookies susceptibles de réaliser des statistiques de visite. Cliquez ici pour plus d'informations