Bénéficiez des services de nos partenaires locaux soigneusement sélectionnés
pour vous accompagner dans votre parcours d'achat immobilier

Maison familiale 6 pièces de 182,08m² et 1300 m² de terrain - charly

— Charly 69390 —
750 000 €
182 m² / 1 300 m²
6 pièces
parkingbalcon/terrasse

Nos partenaires locaux
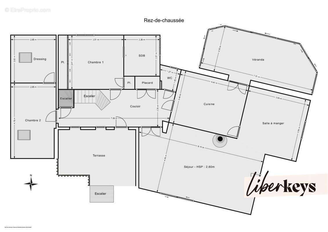
Liberkeys vous propose une splendide maison familiale nichée au cœur de Charly, écrin de verdure et de tranquillité à seulement 15 minutes de Lyon Confluences. Cette maison de 182,08m² (158,62m² de surface totale habitable) et 1300m² de terrain plat piscinable s'inscrit harmonieusement dans un cadre idyllique, garant de votre intimité et de votre bien-être.

Dès l'entrée, vous êtes accueillis dans un spacieux hall de 14,03 m² qui dessert le séjour ouvert sur la salle à manger exposée Sud, baigné de lumière grâce à de grandes baies vitrées, le tout prolongé par deux terrasses.
Une cuisine moderne fermée donnant accès à la salle à manger, est prolongée d'une magnifique véranda de 20m².

Dans la continuité du hall, vous trouverez un WC suspendu séparé, une grande chambre composée d'un grand dressing, d'une salle de bain avec douche italienne et une balnéo.
Enfin, un bureau et un espace fitness complètent ce rez-de-jardin pouvant aussi servir de chambre avec dressing.

À l'étage, la maison bénéficie de deux chambres lumineuses, deux grands placards, un WC séparé, et une salle de bain.

Au sous-sol, deux parkings indépendants avec portes sectionnelles automatisées.
Ajoutons à cela une cave climatisée, une buanderie avec placards, un atelier, et un espace de stockage pour les outils de jardin, éléments pratiques au quotidien.

Charly offre un cadre de vie remarquable avec ses espaces verts, sa proximité avec des écoles de qualité, des commodités et un accès facile aux zones commerciales et transport en commun.

Cette propriété répondra à toutes vos attentes en termes de commodités
Charges mensuelles et financières bien pensées, avec une taxe foncière de 1744 €, rendant ce bien d'autant plus attractif.

Les plus :
- Volets électriques
- Poêle à bois
- Climatisation
- Volets automatisés
- Aspiration centralisée
- Véranda de 20m²
- 1300 m² de terrain plat piscinable et divisible en deux parcelles.
- Un grand garage de 50 m² avec deux accès indépendants
- 9,60 m² de panneaux solaires photovoltaïques

Ce bien vous plaît ? Visitez-le virtuellement en 3D sur le site de Liberkeys ou contactez directement votre conseillère Leïla Kallali, agent commercial immatriculée au RSAC de Lyon sous le numéro 949510119. Référence annonce : DOM10525.

Les informations sur les risques auxquels ce bien est exposé sont disponibles sur le site Géorisques : https://www.georisques.gouv.fr

Liberkeys, votre agence immobilière en mieux.
Humaine, transparente et réactive pour les vendeurs et acheteurs.
Voir plus

Référence: DOM10525
Honoraires à la charge du vendeur.
DPE
A
B
C
D
E
F
G
GES
A
B
C
D
E
F
G

Prêt immobilier

Vous souhaitez connaître votre capacité d’emprunt et trouver le meilleur crédit immobilier ?
Réaliser une simulation gratuite

Maison à CHARLY
Maison à CHARLY
Maison à CHARLY
Maison à CHARLY
Maison à CHARLY
Maison à CHARLY
Maison à CHARLY
Maison à CHARLY
Maison à CHARLY
Maison à CHARLY
Maison à CHARLY
Maison à CHARLY
Maison à CHARLY
Maison à CHARLY
Maison à CHARLY
Maison à CHARLY
Maison à CHARLY
Maison à CHARLY
Maison à CHARLY
Maison à CHARLY
Ce site est protégé par reCAPTCHA la Politique de confidentialité et les Conditions d’utilisation de Google s’appliquent.
Obtenir un prêt immobilier au meilleur taux ?

En poursuivant votre navigation sans modifier vos paramètres, vous acceptez l'utilisation de cookies susceptibles de réaliser des statistiques de visite. Cliquez ici pour plus d'informations