Bénéficiez des services de nos partenaires locaux soigneusement sélectionnés
pour vous accompagner dans votre parcours d'achat immobilier

Maison 4 chambres 112 m²

— Saint-Germain-En-Montagne 39300 —
175 000 €
112 m² / 335 m²
6 pièces
parkingjardin

Nos partenaires locaux
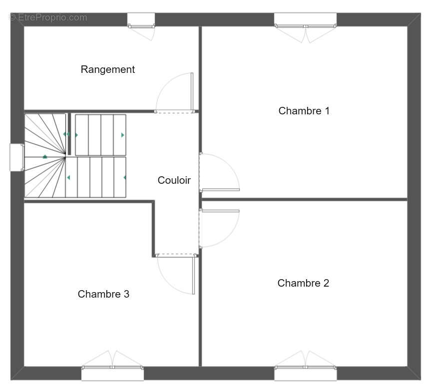
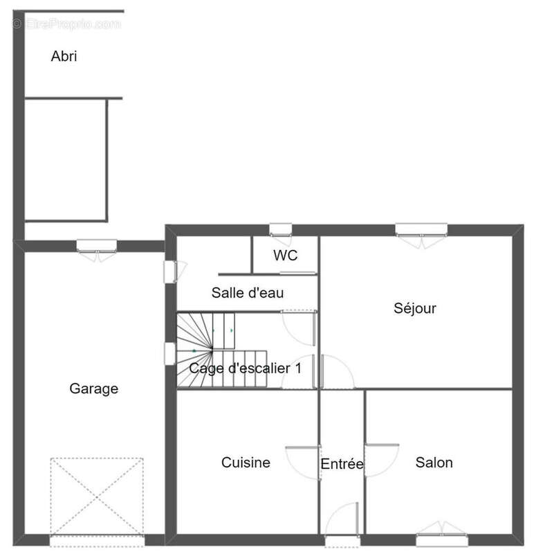
L'agence Toit et Valeurs vous propose à la vente, une maison située sur la commune de Saint Germain en Montagne (école, garderie, cantine, aire de jeux...) Cette maison dispose au rez-de-chaussée une cuisine, séjour avec poêle à bois, une chambre, salle d'eau et wc . Un bel escalier vous emmène à l'étage, qui offre trois chambres et un dressing. Un grenier avec deux fenêtres d'une superficie d'environ 50m² au sol peut être aménagé. Dépendances : garage avec porte motorisée, cave voutée et abri de jardin. Dalle béton pour les deux niveaux. Fenêtres et porte d'entrée double vitrage en PVC de 2018. Isolation extérieure.
Voir plus

Référence: 77
Honoraires à la charge du vendeur.
DPE
A
B
C
D
E
F
G
GES
A
B
C
D
E
F
G

Prêt immobilier

Vous souhaitez connaître votre capacité d’emprunt et trouver le meilleur crédit immobilier ?
Réaliser une simulation gratuite

Maison à SAINT-GERMAIN-EN-MONTAGNE
Maison à SAINT-GERMAIN-EN-MONTAGNE
Maison à SAINT-GERMAIN-EN-MONTAGNE
Maison à SAINT-GERMAIN-EN-MONTAGNE
Maison à SAINT-GERMAIN-EN-MONTAGNE
Maison à SAINT-GERMAIN-EN-MONTAGNE
Maison à SAINT-GERMAIN-EN-MONTAGNE
Maison à SAINT-GERMAIN-EN-MONTAGNE
Ce site est protégé par reCAPTCHA la Politique de confidentialité et les Conditions d’utilisation de Google s’appliquent.
Obtenir un prêt immobilier au meilleur taux ?

En poursuivant votre navigation sans modifier vos paramètres, vous acceptez l'utilisation de cookies susceptibles de réaliser des statistiques de visite. Cliquez ici pour plus d'informations