Bénéficiez des services de nos partenaires locaux soigneusement sélectionnés
pour vous accompagner dans votre parcours d'achat immobilier

Maison 107m² à villenave-d'ornon

— Villenave-D'ornon 33140 —
495 000 €
108 m² / 300 m²
5 pièces
parkingbalcon/terrassejardinaccès handicapé

Nos partenaires locaux
DECOUVREZ VOTRE MAISON DANS UN HAVRE DE PAIX À VILLENAVE D'ORNON.

Plongez dans l'univers de cette magnifique maison, nichée dans le charmant quartier de Villenave-d'Ornon. Au sein d'un cadre intimiste cette maison traversante en pleine propriété bénéficie de tous les avantages d'un quartier proches de commerces, écoles, lycée, équipements sportifs, divers services et transports en commun.

Cette maison en duplex est construite aux dernières normes du neuf avec toutes les garanties d'un confort de vie. L'accès direct sur le jardin et la terrasse promet des moments de détente inoubliables. L'exposition traversante inonde chaque pièce de lumière naturelle tout au long de la journée.
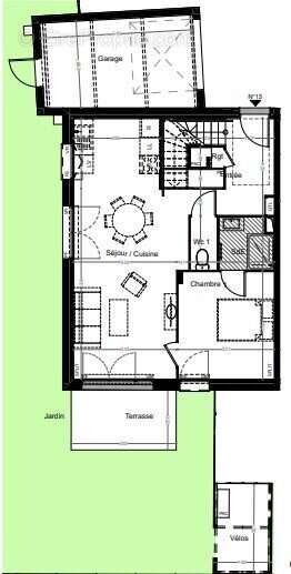
Elle se compose au rez-de-chaussée d'une entrée avec placard, d'un séjour spacieux ou se mêlent élégance et convivialité . Une suite avec sa salle d'eau et un wc.
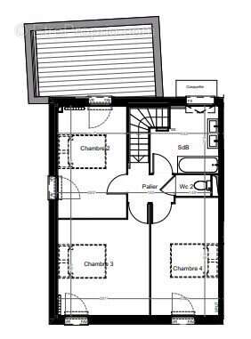
A l'étage vous trouverez trois chambres une salle de bains et un second wc.
.
Ne manquez pas cette opportunité unique de vivre dans une maison où modernité et confort se conjuguent harmonieusement.

Un garage et une place de parking complètent ce bien

DECOUVREZ VOTRE MAISON DANS UN HAVRE DE PAIX À VILLENAVE D'ORNON.



Honoraires à la charge du vendeur. Dans une copropriété de 16 lots. Aucune procédure n'est en cours. DPE en cours. Les informations sur les risques auxquels ce bien est exposé sont disponibles sur le site Géorisques : georisques.gouv.fr.

Votre conseiller RH Patrimoine : Gérant associé - Philippe HERVE
Carte T CPI 33[Coordonnées masquées]29 220
Voir plus

Référence: 140-RHPATRI
Bien en copropriété. Nombre de lots : 16.
Honoraires à la charge du vendeur.
Barème des honoraires

Prêt immobilier

Vous souhaitez connaître votre capacité d’emprunt et trouver le meilleur crédit immobilier ?
Réaliser une simulation gratuite

Maison à VILLENAVE-D'ORNON
Maison à VILLENAVE-D'ORNON
Maison à VILLENAVE-D'ORNON
Maison à VILLENAVE-D'ORNON
Maison à VILLENAVE-D'ORNON
Maison à VILLENAVE-D'ORNON
Ce site est protégé par reCAPTCHA la Politique de confidentialité et les Conditions d’utilisation de Google s’appliquent.
Obtenir un prêt immobilier au meilleur taux ?

En poursuivant votre navigation sans modifier vos paramètres, vous acceptez l'utilisation de cookies susceptibles de réaliser des statistiques de visite. Cliquez ici pour plus d'informations