A vendre - parcelle viabilisée de 297 m2 à marie caze, la plaine saint paul

— Saint-Paul 97411 —
240 000 €
297 m²
jardin

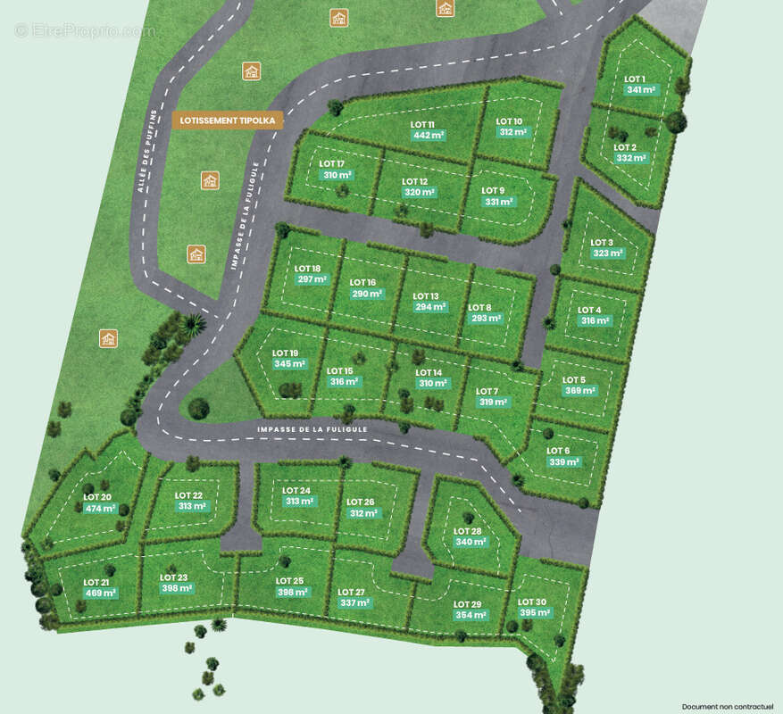
Entre Savanna et la Plaine Saint Paul, CBo Territoria développe au coeur du nouveau Quartier de Marie Caze, le lotissement Zoiseau Blanc.Découvrez ces parcelles viabilisées et prêtes à bâtir, à proximité du lycée Saint-Paul IV, du CHOR et des commerces de proximité, et devenez propriétaire dans un environnement privilégié et résidentiel de l'ouest.Nous vous proposons cette parcelle de 297 m2 qui n'attend plus que votre future maison.
Prix de vente : 240 000 € FAI TTC Prix net vendeur : 226 980 € TTC Honoraires : 13 020 € TTC à la charge du vendeur
Les informations sur les risques auxquels ce bien est exposé sont disponibles sur le site Géorisques : www.georisques.gouv.fr Retrouvez l’ensemble des biens disponibles sur notre site www.cbo-immobilier.com ou en contactant l'un de nos conseillers au [Coordonnées masquées].
Voir plus

Barème des honoraires

Prêt immobilier

Vous souhaitez connaître votre capacité d’emprunt et trouver le meilleur crédit immobilier ?
Réaliser une simulation gratuite

Terrain à SAINT-PAUL
Terrain à SAINT-PAUL
Terrain à SAINT-PAUL
Ce site est protégé par reCAPTCHA la Politique de confidentialité et les Conditions d’utilisation de Google s’appliquent.
Obtenir un prêt immobilier au meilleur taux ?

En poursuivant votre navigation sans modifier vos paramètres, vous acceptez l'utilisation de cookies susceptibles de réaliser des statistiques de visite. Cliquez ici pour plus d'informations