Bénéficiez des services de nos partenaires locaux soigneusement sélectionnés
pour vous accompagner dans votre parcours d'achat immobilier

Maison 101m² à nice

— Nice 06000 —
440 000 €
101 m²
5 pièces

Nos partenaires locaux
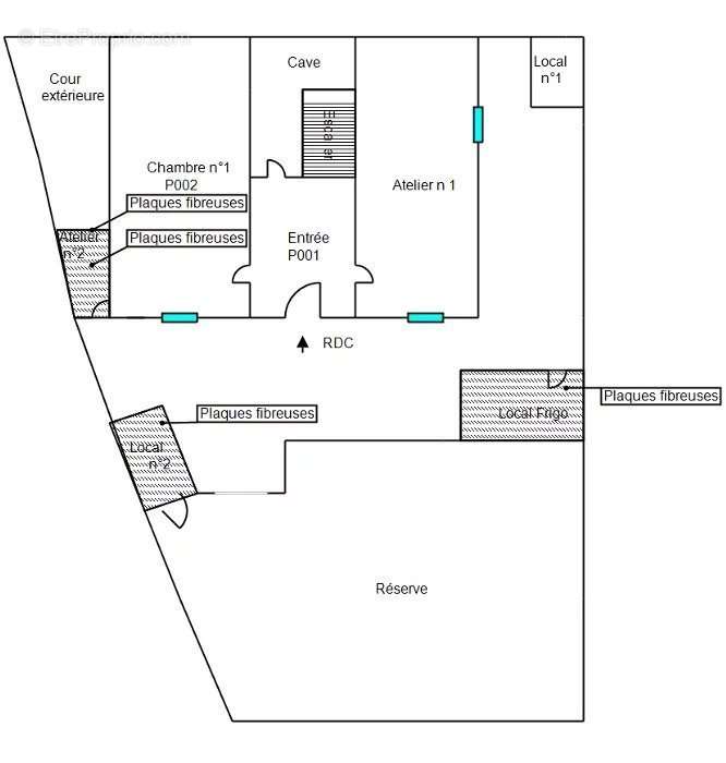
NICE PASTEUR. Maison à rénover de 101m² sur une parcelle de 445m². Actuellement maison où vit un artisan qui a fait son atelier de travail, son bureau et son lieu d'habitation. Elle se compose de 5 pièces, une cuisine, une salle de bain et un WC indépendant. Combles.
Espace extérieur composé de locaux, cave, remise, garages.
Idéal pour un artisan ayant du matériel à stocker ou souhaitant travailler de chez lui. DPE: D&B. Taxe foncière : 2702€. Exclusivité C&B.

Référence: 85521188
DPE
A
B
C
D
E
F
G

Prêt immobilier

Vous souhaitez connaître votre capacité d’emprunt et trouver le meilleur crédit immobilier ?
Réaliser une simulation gratuite

Maison à NICE
Maison à NICE
Maison à NICE
Maison à NICE
Maison à NICE
Maison à NICE
Maison à NICE
Maison à NICE
Maison à NICE
Maison à NICE
Maison à NICE
Maison à NICE
Maison à NICE
Maison à NICE
Maison à NICE
Maison à NICE
Maison à NICE
Ce site est protégé par reCAPTCHA la Politique de confidentialité et les Conditions d’utilisation de Google s’appliquent.
Obtenir un prêt immobilier au meilleur taux ?

En poursuivant votre navigation sans modifier vos paramètres, vous acceptez l'utilisation de cookies susceptibles de réaliser des statistiques de visite. Cliquez ici pour plus d'informations