Bénéficiez des services de nos partenaires locaux soigneusement sélectionnés
pour vous accompagner dans votre parcours d'achat immobilier

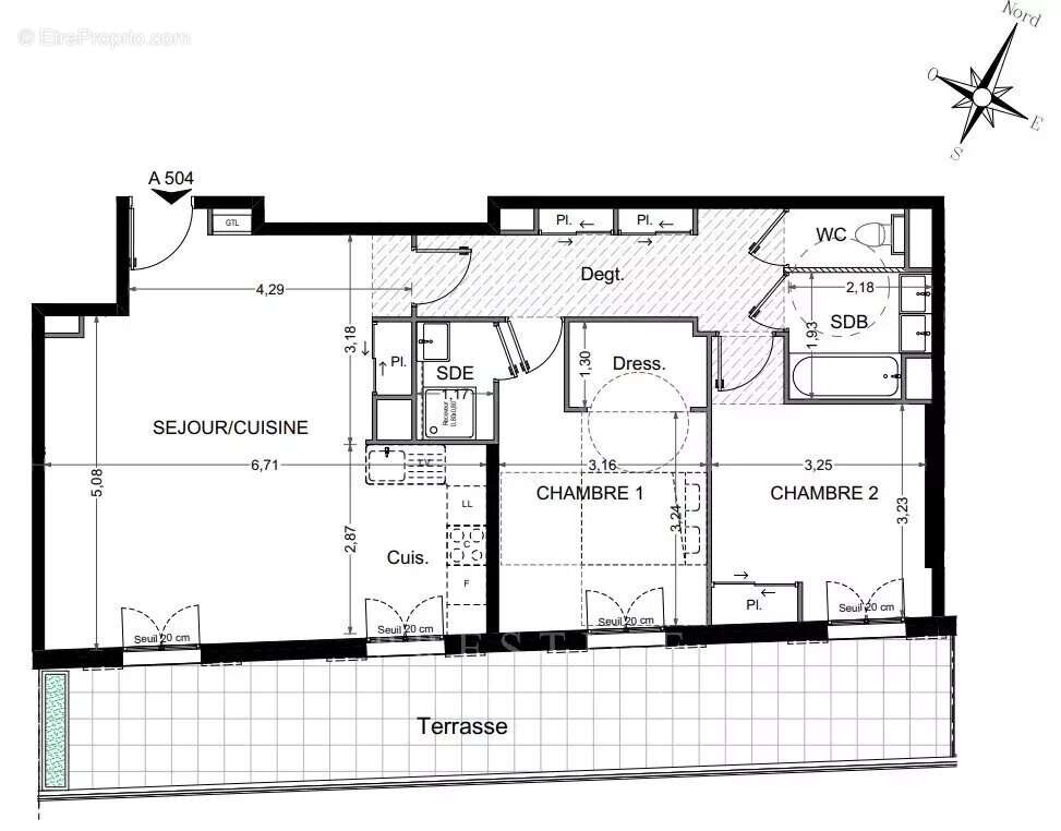
Nice centre 3 pièces 78m², balcon et terrasse

— Nice 06000 —
1 300 000 €
78 m²
4 pièces
parkingbalcon/terrasseascenseuraccès handicapé

Nos partenaires locaux
Nous vous proposons à la vente un 3 pièces d'angle au cœur de Nice. A proximité de la place Masséna et de la promenade des Anglais. Vous profiterez de l'attractivité du centre-ville et de tous ses avantages, Nice Etoile, écoles...
Cet appartement au 5e et avant dernier étage d'une résidence de standing de 41 lots (dont 29 appartements) comprend un séjour/cuisine de 54.8m², trois chambres de 13.7m², 11.8m² et 10.2m², un balcon de 10.1m² nord ouest et une terrasse de 16.3m² sud ouest. Surface habitable 108.5m². Idéal pour tout faire à pied, proche Nice Etoile.
Acquisition en VEFA: frais de notaire réduits, garantie décennale. Belles prestations, tout électrique, accès PMR, idéal en résidence principale ou secondaire. Livraison fin 2024. Honoraires charge vendeur. Parkings possibles. Autres lots disponibles. Les informations sur les risques auxquels ce bien est exposé sont disponibles sur le site Géorisques : georisques.gouv.fr
Voir plus

Référence: LA504
DPE
A
B
C
D
E
F
G
GES
A
B
C
D
E
F
G

Prêt immobilier

Vous souhaitez connaître votre capacité d’emprunt et trouver le meilleur crédit immobilier ?
Réaliser une simulation gratuite

Appartement à NICE
Appartement à NICE
Appartement à NICE
Appartement à NICE
Appartement à NICE
Appartement à NICE
Appartement à NICE
Appartement à NICE
Appartement à NICE
Appartement à NICE
Ce site est protégé par reCAPTCHA la Politique de confidentialité et les Conditions d’utilisation de Google s’appliquent.
Obtenir un prêt immobilier au meilleur taux ?

En poursuivant votre navigation sans modifier vos paramètres, vous acceptez l'utilisation de cookies susceptibles de réaliser des statistiques de visite. Cliquez ici pour plus d'informations