Bénéficiez des services de nos partenaires locaux soigneusement sélectionnés
pour vous accompagner dans votre parcours d'achat immobilier

Terrain à bâtir de 336 m2 hyper centre ville de châteaugiron !

— Chateaugiron 35410 —
111 850 €
336 m²
jardin

Nos partenaires locaux
NOUVEAU TERRAIN À BATIR SUR CHATEAUGIRON !
Vous êtes à la recherche d'un projet immobilier dans une ville dynamique et familliale à proximité des commerces et des commodités ? Nous avons ce qu'il vous faut !
Le Cabinet Yvanez Immobilier vous propose de réaliser votre projet de construction avec un maître d'oeuvre renommé de notre secteur, sur un terrain de 336 m2 viabilisé, parfaitement situé, à seulement quelques pas des commerces et des commodités de la commune.
Ce projet, situé en plein cœur de Châteaugiron, vous permettra de vous inspirer et vous projeter rapidement dans votre nouveau cocon familial.
Une construction qui saura vous séduire pas son emplacement, son design et ses volumes.
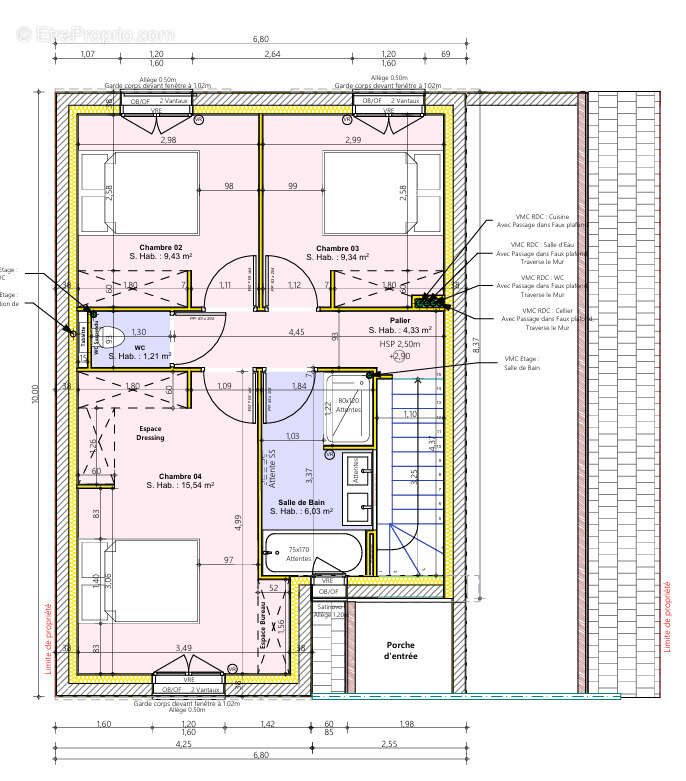
Ses atouts majeurs : 4 chambres, Pièce de vie de plus de 40 m2, stationnement, garage, jardin et proximité immédiate des commodités.
L'ensemble de ce projet a été intégralement pensé pour vous créer un lieu de vie confortable et acceuillant. À vous d'y ajouter votre personnalisation !
Les projections réalisées sont une base de travail. Elles vous permettront d'imaginer et d'affiner les aménagements au regard de vos propres besoin.
Contactez-nous pour obtenir des informations complétaires, par téléphone au [Coordonnées masquées] ou par mail : [Coordonnées masquées]
PRIX HAI DU TERRAIN DE 336 M2 : 111 850 euros (inclus 5850 euros d'honoraires d'agence) + coût de construction de la maison à déterminer selon projet.
Les informations sur les risques auxquels ce bien est exposé sont disponibles sur le site Géorisques : www.georisques.gouv.fr
Voir plus

Référence: 1383
Honoraires d'agence de 5.52% à la charge de l'acquéreur
Barème des honoraires

Prêt immobilier

Vous souhaitez connaître votre capacité d’emprunt et trouver le meilleur crédit immobilier ?
Réaliser une simulation gratuite

Terrain à CHATEAUGIRON
Terrain à CHATEAUGIRON
Terrain à CHATEAUGIRON
Terrain à CHATEAUGIRON
Terrain à CHATEAUGIRON
Terrain à CHATEAUGIRON
Terrain à CHATEAUGIRON
Terrain à CHATEAUGIRON
Ce site est protégé par reCAPTCHA la Politique de confidentialité et les Conditions d’utilisation de Google s’appliquent.
Obtenir un prêt immobilier au meilleur taux ?

En poursuivant votre navigation sans modifier vos paramètres, vous acceptez l'utilisation de cookies susceptibles de réaliser des statistiques de visite. Cliquez ici pour plus d'informations