Bénéficiez des services de nos partenaires locaux soigneusement sélectionnés
pour vous accompagner dans votre parcours d'achat immobilier

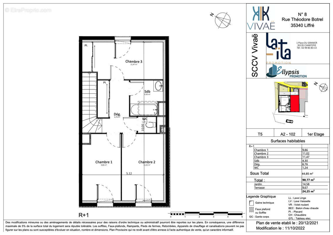
Maison de ville neuve 91 m2 située en plein centre-ville de liffré - 6 pièces.

— Liffre 35340 —
288 495 €
91 m²
5 pièces
parkingbalcon/terrasse

Nos partenaires locaux
L'agence DEMEURES DE L'OUEST vous présente 'Théodore'.
Vous recherchez une maison neuve, moderne et fonctionnelle idéalement située en plein cœur de Liffré, venez découvrir cette charmante maison de ville de 91 m2 (loi carrez).
Construite en 2024, cette maison familiale présente des prestations de qualité ainsi qu’une terrasse et un petit jardin clos.
Elle est composée au rez-de-chaussée, d'une spacieuse pièce de 36 m2, d’une cuisine ouverte et aménagée, un WC et une buanderie ou un bureau.
L'étage abrite trois chambres (9,9 m2, 11 m2 et 11,50 m2), un palier avec placard, un WC, une salle de bain.
Vous apprécierez l'esprit contemporain et les espaces chaleureux de cette maison neuve à fort potentiel.
Vous bénéficierez de deux places de parking (possibilité de les transformer en un grand garage).
Située en plein centre-ville de Liffré, cette maison bénéficie de tous les avantages de la vie urbaine à moins de 2 minutes à pied :
=> Commerces, transports en commun... tout est à proximité !
Contacter l'agence DEMEURES DE L'OUEST pour toute information au [Coordonnées masquées].
Les informations sur les risques auxquels ce bien est exposé sont disponibles sur le site Géorisques.
Voir plus

Référence: 1165
Bien en copropriété.
Honoraires à la charge du vendeur.
Barème des honoraires
DPE
A
B
C
D
E
F
G
GES
A
B
C
D
E
F
G

Prêt immobilier

Vous souhaitez connaître votre capacité d’emprunt et trouver le meilleur crédit immobilier ?
Réaliser une simulation gratuite

Maison à LIFFRE
Maison à LIFFRE
Maison à LIFFRE
Maison à LIFFRE
Maison à LIFFRE
Maison à LIFFRE
Maison à LIFFRE
Maison à LIFFRE
Maison à LIFFRE
Maison à LIFFRE
Maison à LIFFRE
Maison à LIFFRE
Maison à LIFFRE
Maison à LIFFRE
Maison à LIFFRE
Maison à LIFFRE
Maison à LIFFRE
Maison à LIFFRE
Ce site est protégé par reCAPTCHA la Politique de confidentialité et les Conditions d’utilisation de Google s’appliquent.
Obtenir un prêt immobilier au meilleur taux ?

En poursuivant votre navigation sans modifier vos paramètres, vous acceptez l'utilisation de cookies susceptibles de réaliser des statistiques de visite. Cliquez ici pour plus d'informations