Bénéficiez des services de nos partenaires locaux soigneusement sélectionnés
pour vous accompagner dans votre parcours d'achat immobilier

Prestigieux ! appartement en création / réhabilitation du projet rénovation du manoir de la croix st jacques

— Dammarie-Les-Lys 77190 —
300 000 €
48 m²
2 pièces

Nos partenaires locaux
Futur Appartement de type T2 de 48m² dans le Manoir de la Croix Saint Jacques, un Lieu Unique à Dammarie-les-Lys!

Un environnement d'exception

Découvrez le Manoir de la Croix Saint Jacques, une majestueuse demeure du 19e siècle située à Dammarie-les-Lys, à proximité de la gare de Melun (Paris à 25 min en train) et en plein cœur de la forêt de Fontainebleau. Cet écrin historique bénéficie d'un cadre naturel et paisible, offrant à ses résidents un art de vivre unique, à quelques pas des commodités et des grands axes.

Le projet de réhabilitation

Ce lieu chargé d'histoire est en cours de réhabilitation complète pour donner naissance à 20 appartements haut de gamme. Chaque lot a été pensé avec soin pour allier le charme de l'ancien et le confort des prestations modernes.

Les travaux, dont la durée estimée est de 12 mois, permettront de redonner à ce manoir son éclat d'antan tout en répondant aux standards contemporains.

Un avantage fiscal unique

En investissant dans ce projet, vous pourrez bénéficier des avantages du déficit foncier, une opportunité rare qui permet une optimisation fiscale avantageuse tout en construisant un patrimoine immobilier prestigieux.

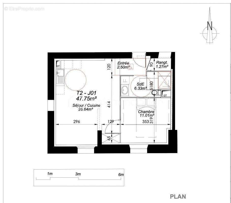
À propos de ce lot :

Type : Appartement T2
Superficie : 48m2
Disposition : Entrée, rangement, séjour cuisine de 27m2 environ, 1 chambre de 11m2, salle d'eau de 6m2.
Particularités : Rez-de-jardin !
Prix de vente : 300 000€ après travaux.

Durée estimée des travaux : 12 mois
Visite du site : possible sur rendez-vous
Contactez-nous dès maintenant pour plus d'informations ou pour organiser une visite.
Contact : [Coordonnées masquées]

Une opportunité rare à ne pas manquer

Investir dans le Manoir de la Croix Saint Jacques, c'est s'offrir un bien unique, dans un environnement prestigieux, tout en bénéficiant d'un dispositif fiscal avantageux. Ne laissez pas passer cette opportunité !

Cette annonce référence 261655 vous est présentée par votre agent commercial BSK Immobilier DAMIEN FAUCHERE (EIRL) immatriculé au RSAC de MELUN (77000) sous le numéro 82955333800015.

Prix du bien : 300 000,00 €
Les honoraires d'agence sont à la charge du vendeur.

A propos de la copropriété :
Pas de procédure en cours.
Nombre de lots : 20
Charges prévisionnelles annuelles : 1,00 €

Non soumis au DPE.

Les informations sur les risques auxquels ce bien est exposé sont disponibles sur le site Géorisques : www.georisques.gouv.fr
Voir plus

Référence: 261655
Bien en copropriété. Nombre de lots : 20.
Honoraires à la charge du vendeur.

Prêt immobilier

Vous souhaitez connaître votre capacité d’emprunt et trouver le meilleur crédit immobilier ?
Réaliser une simulation gratuite

Appartement à DAMMARIE-LES-LYS
Appartement à DAMMARIE-LES-LYS
Appartement à DAMMARIE-LES-LYS
Appartement à DAMMARIE-LES-LYS
Appartement à DAMMARIE-LES-LYS
Ce site est protégé par reCAPTCHA la Politique de confidentialité et les Conditions d’utilisation de Google s’appliquent.
Obtenir un prêt immobilier au meilleur taux ?

En poursuivant votre navigation sans modifier vos paramètres, vous acceptez l'utilisation de cookies susceptibles de réaliser des statistiques de visite. Cliquez ici pour plus d'informations