Montlivault, 15' de blois, maison + grange a restaurer

— Montlivault 41350 —
49 900 €
70 m²
3 pièces

A saisir !! Idéal primo-accédants ou investisseurs !!
Située dans la rue historique de Montlivault, sur une parcelle de 217 m2, à proximité des écoles et commerces, maison et sa grange, toutes deux à restaurer / réhabiliter entièrement.
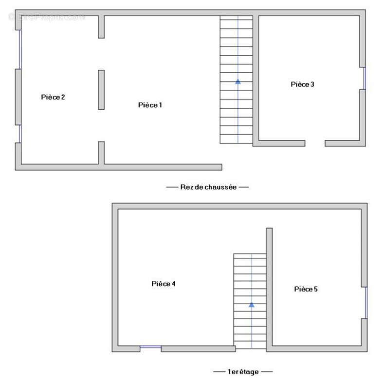
Rez-de-Chaussée et étage à totalement aménager. Possibilité de 3 pièces en RDC et de 2 pièces mansardées à l'étage. Possibilté de changement de destination pour la grange.
Procédure en cours. Pour travaux, un permis de construire sera obligatoire.
Honoraires charge Acquéreur. Prix Net Vendeur : 44 206 €. Honoraires : 5 694 € soit 11.41%
Les informations sur les risques auxquels ce bien est exposé sont disponibles sur le site Géorisques : 'www.georisques.gouv.fr.
Pour plus d'informations ou pour organiser une visite, contactez-moi dès aujourd'hui au [Coordonnées masquées], Régis Chicoisne (EI) Connecta-Immobilier _ RSAC Blois 910 548 189. - Annonce rédigée et publiée par un Agent Mandataire -
Voir plus

Référence: 3065
Honoraires d'agence de 12.88% à la charge de l'acquéreur
Barème des honoraires

Prêt immobilier

Vous souhaitez connaître votre capacité d’emprunt et trouver le meilleur crédit immobilier ?
Réaliser une simulation gratuite

Maison à MONTLIVAULT
Maison à MONTLIVAULT
Maison à MONTLIVAULT
Maison à MONTLIVAULT
Maison à MONTLIVAULT
Maison à MONTLIVAULT
Maison à MONTLIVAULT
Maison à MONTLIVAULT
Maison à MONTLIVAULT
Maison à MONTLIVAULT
Maison à MONTLIVAULT
Ce site est protégé par reCAPTCHA la Politique de confidentialité et les Conditions d’utilisation de Google s’appliquent.
Obtenir un prêt immobilier au meilleur taux ?

En poursuivant votre navigation sans modifier vos paramètres, vous acceptez l'utilisation de cookies susceptibles de réaliser des statistiques de visite. Cliquez ici pour plus d'informations