Bénéficiez des services de nos partenaires locaux soigneusement sélectionnés
pour vous accompagner dans votre parcours d'achat immobilier

Voir tous les partenaires locaux

Rennes cleunay- t3

— Rennes 35000 —
272 900 €
66 m²
3 pièces
ascenseur

Nos partenaires locaux
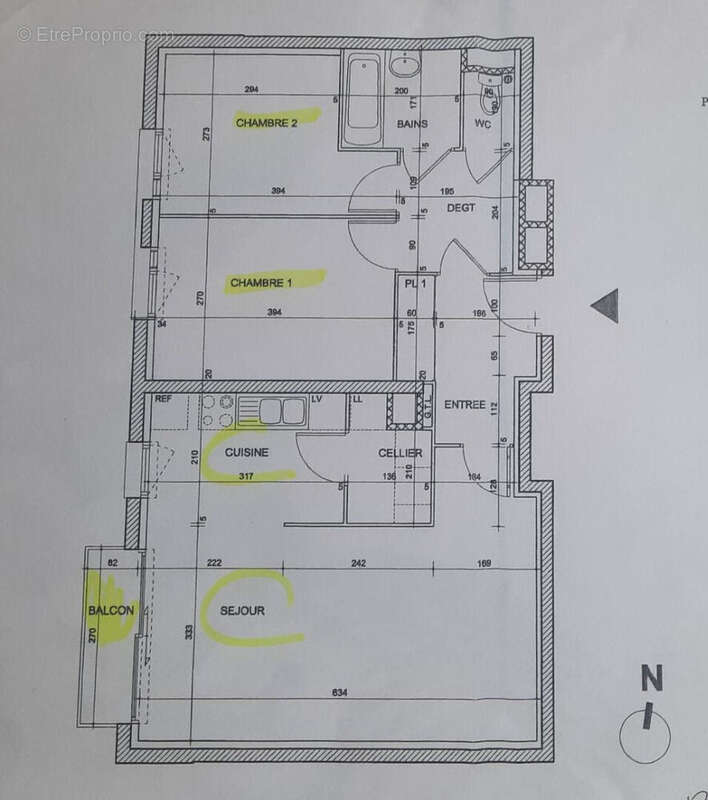
A VENDRE KEREDES - T3 DE 66 m² EXPOSE OUEST - RENNES CLEUNAY FACE METRO dans résidence de 2011 avec ascenseur et GARAGE Actuellement loué, disponible au plus tard en Décembre 2026 Keredes vous propose dans le quartier Cleunay, jouxtant le quartier Mabilais et La Courrouze, au pied du métro et des commerces, venez découvrir ce beau T3 de 66 m² avec GARAGE PRIVATIF ET BALCON. Appartement en parfait état, sur parquet. Pas de travaux à prévoir. Au 3ème étage avec ASCENSEUR, il comprend : une entrée avec placard, une cuisine aménagée et équipée ouverte sur grande pièce de vie avec balcon exposé ouest, une arrière-cuisine avec placard,2 chambres, une salle d'eau, WC séparé avec lave-main, GARAGE FERME EN SOUS-SOL avec faux plafond permettant le stockage. Charges : 160 euros par mois avec chauffage, eau (sous compteur individuel), ascenseur, entretiens des parties communes...) PRIX HAI : 272 900 euros dont 5% d'honoraires à la charge de l'acquéreur Pas de procédure en cours (4.96 % honoraires TTC à la charge de l'acquéreur.) Copropriété de 14 lots - dont 12 lots habitation.().
Voir plus

Référence: 1380
Bien en copropriété. Nombre de lots : 14.
Honoraires d'agence de 4.96% à la charge de l'acquéreur
Barème des honoraires
DPE
A
B
C
D
E
F
G
GES
A
B
C
D
E
F
G

Prêt immobilier

Vous souhaitez connaître votre capacité d’emprunt et trouver le meilleur crédit immobilier ?
Réaliser une simulation gratuite

Appartement à RENNES
Appartement à RENNES
Appartement à RENNES
Appartement à RENNES
Appartement à RENNES
Appartement à RENNES
Appartement à RENNES
Appartement à RENNES
Appartement à RENNES
Appartement à RENNES
Ce site est protégé par reCAPTCHA la Politique de confidentialité et les Conditions d’utilisation de Google s’appliquent.
Obtenir un prêt immobilier au meilleur taux ?

En poursuivant votre navigation sans modifier vos paramètres, vous acceptez l'utilisation de cookies susceptibles de réaliser des statistiques de visite. Cliquez ici pour plus d'informations