Bénéficiez des services de nos partenaires locaux soigneusement sélectionnés
pour vous accompagner dans votre parcours d'achat immobilier

Menton garavan, 2 pièces, parking.

— Menton 06500 —
403 000 €
57 m²
2 pièces
ascenseur

Nos partenaires locaux
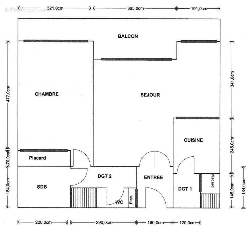
À Menton Garavan, à seulement 100 mètres de la mer, un magnifique appartement deux pièces de 57 m², niché au sein d'une résidence de luxe offrant un cadre de vie privilégié.

Après l’entrée, un vaste et lumineux séjour, sublimé par une cuisine américaine entièrement équipée et un bar pouvant accueillir jusqu'à 7 personnes.

Une chambre, spacieuse, dispose d’une armoire intégrée pour un rangement optimal.

Côté salle de bain, profitez du confort d’une douche à l’italienne, accompagnée de WC, bidet et d’une machine à laver.

Pour encore plus de commodité, des WC séparés sont également à disposition.

L'appartement dispose d'un balcon privatif, accessible depuis le séjour et la chambre.

Enfin, pour plus de praticité et de sécurité, une place de parking en sous-sol complète ce bien d’exception.
Voir plus

Référence: 85668891
DPE
A
B
C
D
E
F
G
GES
A
B
C
D
E
F
G

Prêt immobilier

Vous souhaitez connaître votre capacité d’emprunt et trouver le meilleur crédit immobilier ?
Réaliser une simulation gratuite

Appartement à MENTON
Appartement à MENTON
Appartement à MENTON
Appartement à MENTON
Appartement à MENTON
Appartement à MENTON
Appartement à MENTON
Appartement à MENTON
Appartement à MENTON
Appartement à MENTON
Appartement à MENTON
Appartement à MENTON
Appartement à MENTON
Ce site est protégé par reCAPTCHA la Politique de confidentialité et les Conditions d’utilisation de Google s’appliquent.
Obtenir un prêt immobilier au meilleur taux ?

En poursuivant votre navigation sans modifier vos paramètres, vous acceptez l'utilisation de cookies susceptibles de réaliser des statistiques de visite. Cliquez ici pour plus d'informations