Maison à colombages avec gîte et dépendances

— Estang 32240 —
369 600 €
183 m² / 8 600 m²
10 pièces
piscine

Propriété comprenant 2 gîtes indépendants, l'ensemble implanté au calme sur une surface parcellaire arboré et paysagé de 8600 m2.

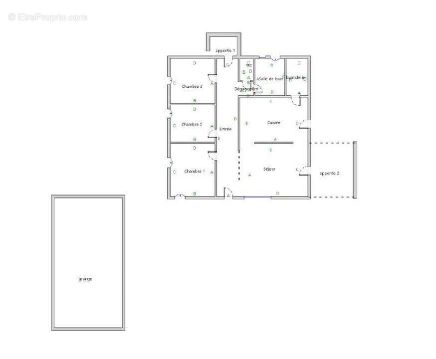
Le gîte N° 1 de 96 m2 se compose de la façon suivante :

Un salon séjour de 20 m2 avec une très jolie cheminée en pierres doté d'un poêle à bois, une buanderie, une salle de bains, 2 chambres, un coin nuit ou bureau, un WC séparé.

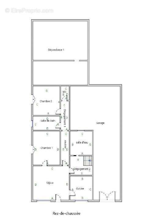
Le gîte N°2 de 87 m2 se compose de la manière suivante:

Au rez-de-chaussée un salon séjour de 18.48 m2 avec une cheminée équipée d'un poêle à bois, une cuisine séparée, une buanderie, une salle d'eau avec douche italienne et WC, 2 chambres, une salle de bains, un WC séparé, l'étage abrite une chambre de 12.40 m2.

Sur le Côté du Gîte N° un garage de 41 m2 permettant l'accès aux combles ainsi qu'une grange de 55 m2.

INFORMATIONS DIVERSES:

Étable: 60 m2 avec appentis de 22 m2

Dépendance métallique : 86 m2

Dépendance de 34 m2 accueillant à l'intérieur la filtration de la piscine.

Piscine avec un abris coulissant : 9 x4 profondeur maximum 1.75 m traitement au chlore.

Une fosse septique par gîte, compteur individuel par gîte.

Propriété située à 4 km des principaux commerces avec ramassage scolaire à proximité.

Autoroute A 65 20 minutes, Mont de Marsan 25 minutes.

GÎTE 1: DPE 297 /Classe E consommation entre 1550 E et 2140 E an.

GÎTE 2: DPE 337 / Classe F consommation entre 1580 E et 2200 E an.

Les informations sur les risques auxquels ce bien est exposé sont disponibles sur le site Géorisques : www. georisques. gouv. fr.Pour plus d'informations et pour une visite, contactez Hervé DESPLAT : CLAIRIMMO Barbotan - 3 avenue des Thermes 32150 CAZAUBON - Service Transaction : [Coordonnées masquées] Service Location : [Coordonnées masquées] email : [Coordonnées masquées] RCS 851 986 620 Agent commercial indépendant du réseau national Clairimmo N° RSAC : 495 108 755
Voir plus

Référence: 11367DQ612
Honoraires à la charge du vendeur.
DPE
A
B
C
D
E
F
G
GES
A
B
C
D
E
F
G

Prêt immobilier

Vous souhaitez connaître votre capacité d’emprunt et trouver le meilleur crédit immobilier ?
Réaliser une simulation gratuite

Maison à ESTANG
Maison à ESTANG
Maison à ESTANG
Maison à ESTANG
Maison à ESTANG
Maison à ESTANG
Maison à ESTANG
Maison à ESTANG
Maison à ESTANG
Maison à ESTANG
Maison à ESTANG
Maison à ESTANG
Maison à ESTANG
Maison à ESTANG
Maison à ESTANG
Maison à ESTANG
Maison à ESTANG
Maison à ESTANG
Maison à ESTANG
Maison à ESTANG
Maison à ESTANG
Maison à ESTANG
Maison à ESTANG
Maison à ESTANG
Maison à ESTANG
Maison à ESTANG
Maison à ESTANG
Maison à ESTANG
Maison à ESTANG
Maison à ESTANG
Ce site est protégé par reCAPTCHA la Politique de confidentialité et les Conditions d’utilisation de Google s’appliquent.
Obtenir un prêt immobilier au meilleur taux ?

En poursuivant votre navigation sans modifier vos paramètres, vous acceptez l'utilisation de cookies susceptibles de réaliser des statistiques de visite. Cliquez ici pour plus d'informations