Bénéficiez des services de nos partenaires locaux soigneusement sélectionnés
pour vous accompagner dans votre parcours d'achat immobilier

? t4 familial ? traversant + terrasse + box ? 13008 marseille

— Marseille-8e 13008 —
325 000 €
90 m²
4 pièces
parkingbalcon/terrasseascenseur

Nos partenaires locaux
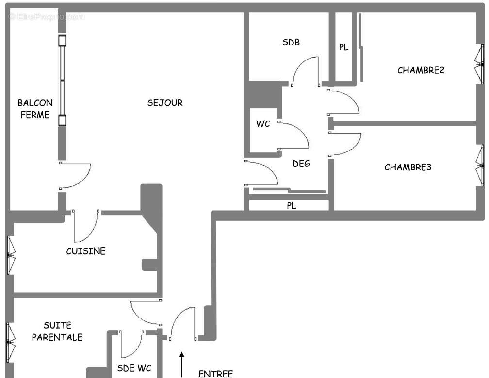
Vous rêvez d'espace, de lumière et de confort pour votre famille ?

Situé dans un quartier prisé du 8e arrondissement, à deux pas du parc du 26e Centenaire, des transports (métro et tram) et des commerces de proximité, cet appartement traversant coche toutes les cases d'une vie citadine agréable.

? Un espace pensé pour toute la famille
Dès l'entrée, vous serez séduit par un salon-séjour lumineux, ouvert sur une terrasse , parfait pour les repas en extérieur ou les pauses détente.
La cuisine séparée, aménagée et équipée vous permet de concilier convivialité et praticité.

? Le plan est idéal :

Un premier coin nuit pour les enfants ou les invités avec 2 chambres avec rangements, une salle de bains, WC séparés, et plusieurs placards intégrés.

A l'opposé, une véritable suite parentale avec chambre confortable et salle d'eau privée.

? Confort et sérénité au quotidien
Garage fermé dans la copropriété

Immeuble bien entretenu, aucun travaux à prévoir

Bonne desserte transports et accès routiers

? Un appartement clé en main, fonctionnel et chaleureux, parfait pour une famille souhaitant s'installer dans un secteur recherché du 13008.

? Disponible pour plus d'infos ou une visite personnalisée.

DPE : C, GES : C

Charges de copropriété annuelles : 647 euros/trim.

Montant moyen estimé des dépenses annuelles d'énergie pour un usage standard établi à partir des prix de l'énergie de l'année 2021 : entre 620 euros et 910 euros.

Pour organiser par la suite une visite et vous accompagner dans votre projet contactez Thibault HILAIRE au [Coordonnées masquées] ou par mail à [Coordonnées masquées].

---------------------------------------------------------------------------------------------------
Cette présente annonce a été rédigée sous la responsabilité éditoriale de Thibault HILAIRE agissant sous le statut d'agent commercial immatriculé au RSAC sous le numéro 881 947 675.
Mandat réf : 391014 - Le professionnel garantit et sécurise votre projet immobilier.
Selon l'article L.561.5 du Code Monétaire et Financier, pour l'organisation de la visite, la présentation d'une pièce d'identité vous sera demandée.
Les informations sur les risques auxquels ce bien est exposé sont disponibles sur le site Géorisques : www. georisques. gouv. fr
SAS PROPRIETES PRIVEES - ZAC du Chêne ferré - 44 Allée des Cinq Continents 44120 VERTOU. Carte professionnelle CPI 44[Coordonnées masquées]10 388 CCI Nantes - Saint Nazaire. RCS NANTES 487 624 777
Copropriété de 56 lots - dont 25 lots habitation.().
Thibault HILAIRE (EI) Agent Commercial - Numéro RSAC : MARSEILLE 881 947 675 - .
Voir plus

Référence: 391014HIA
Bien en copropriété. Nombre de lots : 56.
Honoraires à la charge du vendeur.
DPE
A
B
C
D
E
F
G
GES
A
B
C
D
E
F
G

Prêt immobilier

Vous souhaitez connaître votre capacité d’emprunt et trouver le meilleur crédit immobilier ?
Réaliser une simulation gratuite

Appartement à MARSEILLE-8E
Appartement à MARSEILLE-8E
Appartement à MARSEILLE-8E
Appartement à MARSEILLE-8E
Appartement à MARSEILLE-8E
Appartement à MARSEILLE-8E
Appartement à MARSEILLE-8E
Appartement à MARSEILLE-8E
Appartement à MARSEILLE-8E
Ce site est protégé par reCAPTCHA la Politique de confidentialité et les Conditions d’utilisation de Google s’appliquent.
Obtenir un prêt immobilier au meilleur taux ?

En poursuivant votre navigation sans modifier vos paramètres, vous acceptez l'utilisation de cookies susceptibles de réaliser des statistiques de visite. Cliquez ici pour plus d'informations