Dpt paris (75), à vendre paris 3eme arrondissement bureaux/atelier/profession libérale

— Paris-3e 75003 —
569 000 €
62 m²
2 pièces

Situé dans la pittoresque rue des Gravilliers, je vous invite à découvrir cet ancien atelier et vous laissez emporter par le charme de sa verrière, de ses poutres et ses pierres de taille apparentes.
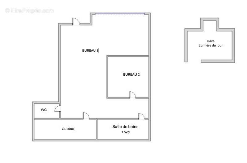
Il se compose d'une grande pièce de 36m², d'un bureau de 8m², d'une cave de stockage de 7m² directement accessible, une cuisine, une salle de bains avec baignoire, douche et wc, et un wc séparé. Au calme en rez-de-chaussée sur cours.
Possibilité de bureaux, atelier, profession libérale, show-room...
Travaux de rénovation à prévoir, ouverture possible entre bureau 1 et bureau 2.

A proximité du centre Beaubourg, de la place de la république et des halles vous êtes au cœur de Paris.
Stations de métro : Arts et Métiers-lignes 3, 11. Etienne Marcel-lignes 4.
Lignes de bus 20,29,38

Nombre de lots de la copropriété : 35, Montant moyen annuel de la quote-part de charges (budget prévisionnel)(Provision) : 3060€ soit 255€ par mois. Les honoraires d'agence sont à la charge de l'acquéreur, soit 3,45% TTC du prix hors honoraires.
Les informations sur les risques auxquels ce bien est exposé sont disponibles sur le site Géorisques : www. georisques. gouv. fr.

Réseau Immobilier CAPIFRANCE - Votre agent commercial (RSAC N°531 686 111 - Greffe de CRETEIL) Francis MARGNOUX Entrepreneur Individuel [Coordonnées masquées] - Réf.894654
Voir plus

Référence: 340932955168
Bien en copropriété. Nombre de lots : 35. Charges de copropriété : 255 €.
DPE
A
B
C
D
E
F
G
GES
A
B
C
D
E
F
G

Prêt immobilier

Vous souhaitez connaître votre capacité d’emprunt et trouver le meilleur crédit immobilier ?
Réaliser une simulation gratuite

Commerce à PARIS-3E
Commerce à PARIS-3E
Commerce à PARIS-3E
Commerce à PARIS-3E
Commerce à PARIS-3E
Commerce à PARIS-3E
Commerce à PARIS-3E
Commerce à PARIS-3E
Ce site est protégé par reCAPTCHA la Politique de confidentialité et les Conditions d’utilisation de Google s’appliquent.
Obtenir un prêt immobilier au meilleur taux ?

En poursuivant votre navigation sans modifier vos paramètres, vous acceptez l'utilisation de cookies susceptibles de réaliser des statistiques de visite. Cliquez ici pour plus d'informations