Bénéficiez des services de nos partenaires locaux soigneusement sélectionnés
pour vous accompagner dans votre parcours d'achat immobilier

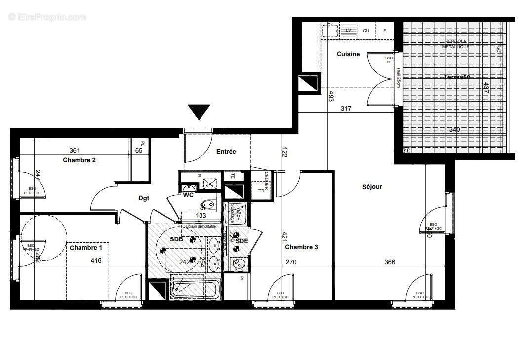
T4 de 81,85 m2

— Villeurbanne 69100 —
535 000 €
81 m²
4 pièces
balcon/terrasse

Nos partenaires locaux
T4 de 81,85 m2 situé à Villeurbanne, au R+5 de la résidence.

COMPOSITION

Entrée avec placard et cellier (10,05 m2)
Séjour/cuisine (30,85 m2)
3 chambres :

Chambre 1 (11,40 m2)
Chambre 2 avec placard (9,35 m2)
Chambre 3 avec placard (11,40 m2)


Salle de bains (5,60 m2)
Salle d'eau (1,85 m2)
WC séparé (1,35 m2)
Dégagement (6,85 m2)
Terrasse (14,80 m2)


PRESTATIONS HAUT DE GAMME

Revêtement carrelage dans les pièces de vie
Parquet contrecollé dans les chambres (spécifique T4/T5)
Faïence toute hauteur dans la salle de bains et salle d'eau
Meubles vasques design
Porte vitrée entre dégagement et séjour
Menuiseries extérieures en aluminium
Brise-soleil électrique sur toutes les baies
Chaudière individuelle gaz
Sèche-serviettes avec option soufflant
WC suspendu
Espaces de rangement optimisés
Pack domotique 'Mon Appart' Connecté' (Pack Sérénité T4/T5)
Vidéophone mains libres couleur
Porte palière sécurisée 3 points
Local vélos (75m2)
Stationnement en sous-sol avec télécommande


LOCALISATION PRIVILÉGIÉE

Quartier Ferrandière - Maisons Neuves
À la lisière du quartier Montchat (Lyon 3ème)
Station tram T3 Reconnaissance-Balzac à 7 min à pied
Bus C9, C11 et 69 à proximité
Gare Part-Dieu à 8 min à vélo
Commerces et marché avenue Saint-Exupéry à 300m
Proche des parcs Nathalie Gautier et Georges Bazin


INFORMATIONS LOI ALUR

Statut du négociateur : Agent immobilier
Classe énergie et climat : B
Montant des dépenses annuelles d'énergie pour un usage standard : NC
Bien soumis au statut de la copropriété
Nombre de logements : 23 appartements et 3 villas
Les honoraires sont à la charge du vendeur
Citation partie annuelle (moyenne) : NC
Les informations sur les risques associés à ce bien sont disponibles sur le site Géorisques : www.georisques.gouv.fr


Saisissez cette occasion exceptionnelle dès maintenant ! Pour de plus amples informations et pour planifier une visite, veuillez contacter Maxime, votre agent immobilier au [Coordonnées masquées].
Voir plus

Honoraires à la charge du vendeur.
Barème des honoraires
DPE
A
B
C
D
E
F
G
GES
A
B
C
D
E
F
G

Prêt immobilier

Vous souhaitez connaître votre capacité d’emprunt et trouver le meilleur crédit immobilier ?
Réaliser une simulation gratuite

Appartement à VILLEURBANNE
Appartement à VILLEURBANNE
Ce site est protégé par reCAPTCHA la Politique de confidentialité et les Conditions d’utilisation de Google s’appliquent.
Obtenir un prêt immobilier au meilleur taux ?

En poursuivant votre navigation sans modifier vos paramètres, vous acceptez l'utilisation de cookies susceptibles de réaliser des statistiques de visite. Cliquez ici pour plus d'informations