Bénéficiez des services de nos partenaires locaux soigneusement sélectionnés
pour vous accompagner dans votre parcours d'achat immobilier

Appartement 62m² à saint-cyprien

— Saint-Cyprien 66750 —
435 000 €
63 m²
3 pièces
parkingbalcon/terrasseascenseur

Nos partenaires locaux
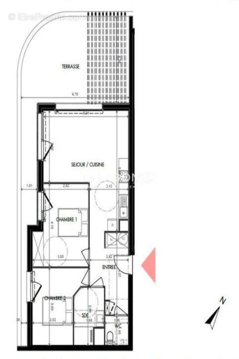
RÉSIDENCE DE L'ART : faisant face à la Plage de l'Art, dans un cadre privilégié et dans une copropriété de standing sécurisée, avec ascenseur, de 12 appartements.
Au dernier étage, appartement de type 3 d'une superficie de 62.81 m² comprenant une entrée, un séjour-salon-une cuisine contemporaine semi-équipée et aménagée d'environ 25 m² ouvert sur une veste terrasse de 36 m² avec une vue dégagée ensoleillée, deux chambres dont une avec placard aménagé, une salle d'eau avec douche à l'italienne et mobilier design intégré, un WC suspendu indépendant.
L'appartement dispose d'un garage de plain-pied d'une superficie de 15 m².

Prestations : normes de construction RE2020, panneaux photovoltaïques en toiture, menuiseries en aluminium ou PVC anthracite, VRE, porte palière à âme pleine stratifiée équipée de serrures 3 points, garde-corps thermo laqué et verre opaque, carrelage grès cérame 60X60 et faïence dans les salles d'eau, dalles sur plots pour le revêtement des terrasses, prise antenne et RJ45, ballon thermodynamique, climatisation gainable et sèche serviettes, VMC.

FRAIS DE NOTAIRE RÉDUITS
Voir plus

Référence: 860V619A
Bien en copropriété. Nombre de lots : 12.
Honoraires à la charge du vendeur.

Prêt immobilier

Vous souhaitez connaître votre capacité d’emprunt et trouver le meilleur crédit immobilier ?
Réaliser une simulation gratuite

Appartement à SAINT-CYPRIEN
Appartement à SAINT-CYPRIEN
Appartement à SAINT-CYPRIEN
Appartement à SAINT-CYPRIEN
Appartement à SAINT-CYPRIEN
Appartement à SAINT-CYPRIEN
Ce site est protégé par reCAPTCHA la Politique de confidentialité et les Conditions d’utilisation de Google s’appliquent.
Obtenir un prêt immobilier au meilleur taux ?

En poursuivant votre navigation sans modifier vos paramètres, vous acceptez l'utilisation de cookies susceptibles de réaliser des statistiques de visite. Cliquez ici pour plus d'informations