Bénéficiez des services de nos partenaires locaux soigneusement sélectionnés
pour vous accompagner dans votre parcours d'achat immobilier

Commerce 87m² à aix-en-provence

— Aix-En-Provence 13100 —
174 000 €
87 m²

Nos partenaires locaux
Iad France - Anne DESBOIS ([Coordonnées masquées]) vous propose : * Fonds de commerce restaurant - Quartier des Tanneurs *

Vous avez pour projet de reprendre seul ou à deux l'exploitation d'un établissement bien implanté depuis des années et en développer l'activité pour écrire votre propre histoire ?

Cet établissement plein de charme, idéalement situé dans le quartier des Tanneurs, entre la Rotonde et le Cours Sextius, et à deux pas du Cours Mirabeau et des Allées Provençales, est fait pour vous !

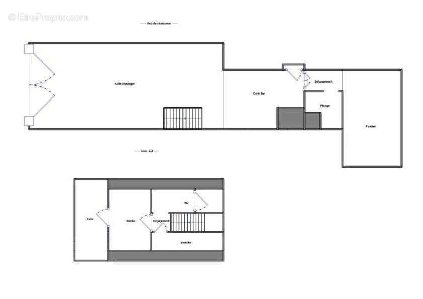
Vous serez forcément séduit par ce restaurant bar à tapas créé en 2011 et très bien noté, d'une surface totale de 87 m² environ, composé de :

-Salle de restaurant 34 m² environ
-Coin bar 12 m² environ
-Cuisine et coin plonge 15 m² environ
-Sanitaires 3 m² environ
-Remise 8 m² environ
-Vestiaires-douche 4 m² environ

40 couverts en salle
11 couverts en terrasse

Ouvert actuellement :
-tous les soirs de la semaine
-le midi les samedis et dimanches

Possibilité d'étendre l'ouverture tous les midis en semaine

Loyer mensuel 1500¤ HT et hors charges, soit 2000¤ TTC et charges comprises (charges de copropriété et taxe foncière)

Le bail sera repris à la vente pour 9 ans sur cette base.

Information d'affichage énergétique sur le bien associé à cette annonce : DPE NS indice 0 et GES NS indice 0. La présente annonce immobilière a été rédigée sous la responsabilité éditoriale de Mlle Anne DESBOIS (ID 45733), Agent Commercial mandataire en immobilier immatriculé au Registre Spécial des Agents Commerciaux (RSAC) du Tribunal de Commerce de AIX EN PROVENCE sous le numéro 883636987
Retrouvez tous nos biens sur notre site internet. www.iadfrance.fr.
Informations LOI ALUR :
Honoraires charge vendeur. (gedeon_6727_30860427)
Voir plus

Référence: 1712959
Honoraires à la charge du vendeur.

Prêt immobilier

Vous souhaitez connaître votre capacité d’emprunt et trouver le meilleur crédit immobilier ?
Réaliser une simulation gratuite

Photo 1 - Commerce à AIX-EN-PROVENCE
Photo 1
Photo 2 - Commerce à AIX-EN-PROVENCE
Photo 2
Photo 3 - Commerce à AIX-EN-PROVENCE
Photo 3
Photo 4 - Commerce à AIX-EN-PROVENCE
Photo 4
Photo 5 - Commerce à AIX-EN-PROVENCE
Photo 5
Ce site est protégé par reCAPTCHA la Politique de confidentialité et les Conditions d’utilisation de Google s’appliquent.
Obtenir un prêt immobilier au meilleur taux ?

En poursuivant votre navigation sans modifier vos paramètres, vous acceptez l'utilisation de cookies susceptibles de réaliser des statistiques de visite. Cliquez ici pour plus d'informations