Bénéficiez des services de nos partenaires locaux soigneusement sélectionnés
pour vous accompagner dans votre parcours d'achat immobilier

A vendre brest maison d'architecte de 215 m2 proche capucins

— Brest 29200 —
420 000 €
215 m² / 350 m²
7 pièces
jardin

Nos partenaires locaux
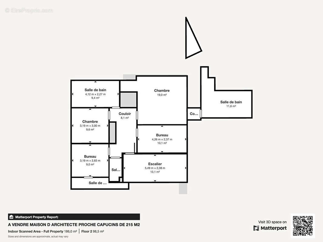
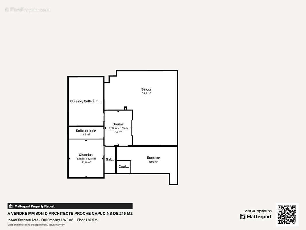
PROCHE DES CAPUCINS - RIVE DROITE Vous recherchez des volumes ? ARGOS Transactions vous présente cette propriété de 215 m2 habitables dont les plans ont été signé par l'architecte BEVERINA en 1966. Cette demeure de famille se décline en trois niveaux. Depuis le hall d'entée vous accéderez à un magnifique escalier donnant d'une part à un dégagement pour rejoindre le salon-séjour, la cuisine, une chambre ainsi qu'une salle d'eau, les WC sont séparés . D'autre part, après avoir descendu quelques marches vous pourrez découvrir deux portes, celle de droite pour rejoindre un appartement refait à neuf avec une entrée indépendante. Celle de gauche mêne au sous sol qui fait la totalité de la maison ayant également un accès au jardin. Enfin en reprenant cet escalier majestueux vous rejoindrez le dernier étage. Ce dernier nécessitera quelques travaux de rafraichissement pour lui redonner sa splendeur d'antan. Coté technique les huisseries sont très bon état, la toiture également, le ravalement récent, chaudière gaz deux ans. Le plus : Un garage. Visite virtuelle disponible sur notre site. Référence 237-SM Votre contact : Stéphanie Marrec ARGOS Transactions [Coordonnées masquées]
Voir plus

Honoraires à la charge du vendeur.
Barème des honoraires
DPE
A
B
C
D
E
F
G
GES
A
B
C
D
E
F
G

Prêt immobilier

Vous souhaitez connaître votre capacité d’emprunt et trouver le meilleur crédit immobilier ?
Réaliser une simulation gratuite

Maison à BREST
Maison à BREST
Maison à BREST
Maison à BREST
Maison à BREST
Maison à BREST
Maison à BREST
Maison à BREST
Maison à BREST
Maison à BREST
Maison à BREST
Maison à BREST
Maison à BREST
Maison à BREST
Maison à BREST
Maison à BREST
Maison à BREST
Ce site est protégé par reCAPTCHA la Politique de confidentialité et les Conditions d’utilisation de Google s’appliquent.
Obtenir un prêt immobilier au meilleur taux ?

En poursuivant votre navigation sans modifier vos paramètres, vous acceptez l'utilisation de cookies susceptibles de réaliser des statistiques de visite. Cliquez ici pour plus d'informations