Bénéficiez des services de nos partenaires locaux soigneusement sélectionnés
pour vous accompagner dans votre parcours d'achat immobilier

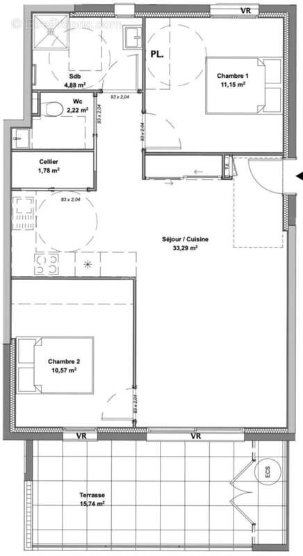
Vente appartement calvi(20260) 481 000ᅵ

— Calvi 20260 —
481 000 €
64 m²
3 pièces

Nos partenaires locaux
T3 en dernier étage avec vue mer dans une résidence très récente, calme et sécurisée, à proximité des commerces et de la plage, venez découvrir ce très beau t3 au dernier étage avec une très belle vue mer et citadelle. il se compose d'un grand séjour avec cuisine ouverte, d'une cellier, d'une salle d'eau, d'un wc séparé et de deux chambres dont une avec accès direct à une belle terrasse vue panoramique mer et montagne. vendu avec un garage

Référence: 85705559

Prêt immobilier

Vous souhaitez connaître votre capacité d’emprunt et trouver le meilleur crédit immobilier ?
Réaliser une simulation gratuite

Appartement à CALVI
Appartement à CALVI
Appartement à CALVI
Appartement à CALVI
Ce site est protégé par reCAPTCHA la Politique de confidentialité et les Conditions d’utilisation de Google s’appliquent.
Obtenir un prêt immobilier au meilleur taux ?

En poursuivant votre navigation sans modifier vos paramètres, vous acceptez l'utilisation de cookies susceptibles de réaliser des statistiques de visite. Cliquez ici pour plus d'informations