Bénéficiez des services de nos partenaires locaux soigneusement sélectionnés
pour vous accompagner dans votre parcours d'achat immobilier

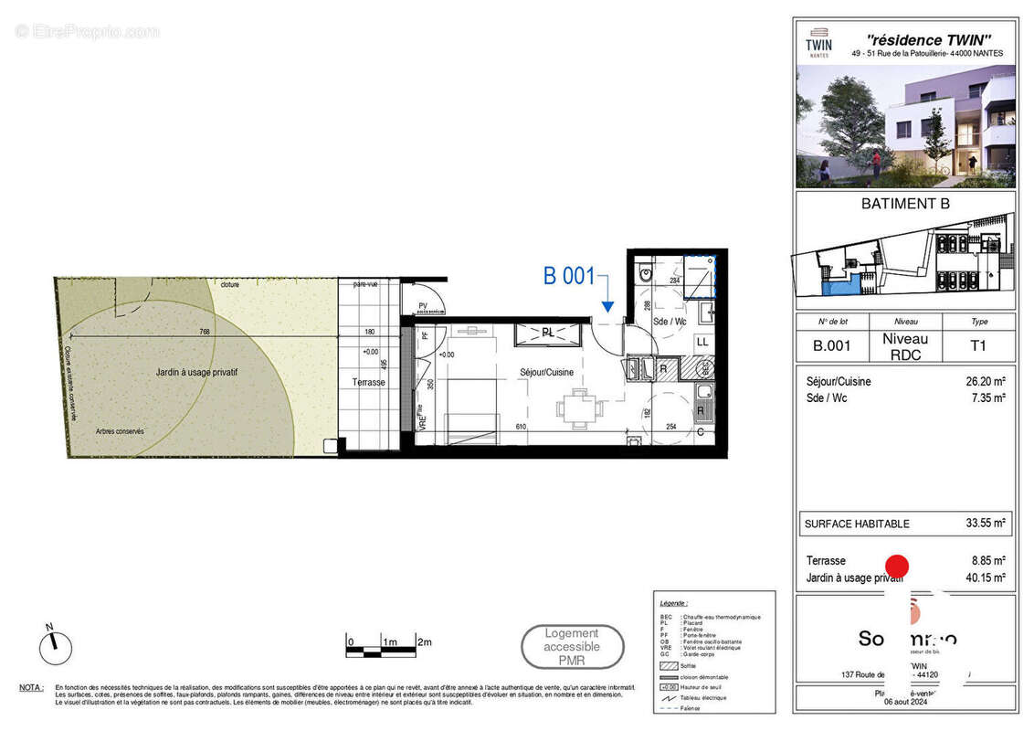
Appartement nantes 1pièce

— Nantes 44300 —
223 000 €
34 m²
1 pièce
balcon/terrasse

Nos partenaires locaux
NANTES GAUDINIERE Venez vous renseigner pour ce magnifique T1 dans un cadre verdoyant et privilégié, au coeur du Parc de la Gaudinière. Profitez d'un environnement paisible, à proximité des commerces, transports et écoles. Ce programme de qualité propose 16 logements du studio au 3 pièces. Prix promoteur. Livraison 3éme trimestre 2026. (6.19 % honoraires TTC à la charge de l'acquéreur.) Copropriété de 16 lots ().

Référence: 319
Honoraires d'agence de 6.19% à la charge de l'acquéreur
Barème des honoraires

Prêt immobilier

Vous souhaitez connaître votre capacité d’emprunt et trouver le meilleur crédit immobilier ?
Réaliser une simulation gratuite

Appartement à NANTES
Appartement à NANTES
Ce site est protégé par reCAPTCHA la Politique de confidentialité et les Conditions d’utilisation de Google s’appliquent.
Obtenir un prêt immobilier au meilleur taux ?

En poursuivant votre navigation sans modifier vos paramètres, vous acceptez l'utilisation de cookies susceptibles de réaliser des statistiques de visite. Cliquez ici pour plus d'informations