Bénéficiez des services de nos partenaires locaux soigneusement sélectionnés
pour vous accompagner dans votre parcours d'achat immobilier

Commerce 75m² à draguignan

— Draguignan 83300 —
232 596 €
76 m²
ascenseur

Nos partenaires locaux
TVA récupérable Montant HT 193 830 euros HT

À vendre à Draguignan, dans une résidence neuve, livraison prévue dernier trimestre 2025 idéal pour des professions libérales!

La résidence sécurisée est située au centre-ville de Draguignan à proximité de parkings, du tribunal ou encore de la sous préfecture. Elle est équipée d'un garage sécurisé et d'un ascenseur.

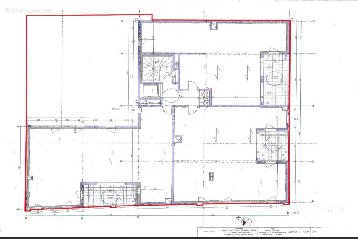
Le premier étage de la copropriété est composé de trois lots avec possibilité de les réunir.

Le premier Lot de 75,84 m2 agrémenté de 11,93 m2 de terrasse

Il sera livré brut de béton, les acquéreurs prendront en charge les différents aménagements dans le local afin d'accueillir une profession libérale.

La livraison brute de béton comprend : les menuiseries extérieures, une porte d'entrée par lot, les gaines d'alimentation électrique et les alimentations en eau et évacuations des eaux usée.

Possibilité d'acheter des places de stationnements en supplément.

Frais de notaire réduit.

Les informations sur les risques auxquels ce bien sont exposé sont disponibles sur le site Géorisques http://www.georisques.gouv.fr.
Voir plus

Référence: 869P118V
Honoraires à la charge de l'acquéreur.

Prêt immobilier

Vous souhaitez connaître votre capacité d’emprunt et trouver le meilleur crédit immobilier ?
Réaliser une simulation gratuite

Commerce à DRAGUIGNAN
Commerce à DRAGUIGNAN
Commerce à DRAGUIGNAN
Ce site est protégé par reCAPTCHA la Politique de confidentialité et les Conditions d’utilisation de Google s’appliquent.
Obtenir un prêt immobilier au meilleur taux ?

En poursuivant votre navigation sans modifier vos paramètres, vous acceptez l'utilisation de cookies susceptibles de réaliser des statistiques de visite. Cliquez ici pour plus d'informations