Maison - 5 pièces - 130 m2 objat

— Objat 19130 —
175 000 €
130 m² / 903 m²
5 pièces
parkingbalcon/terrassejardin

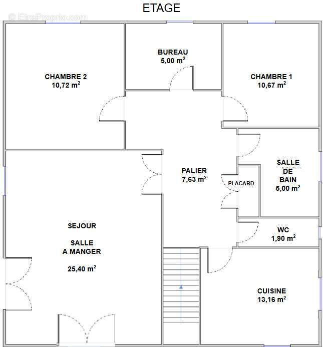
Maison 5 pièces à Objat en Corrèze avec sous bassement en pierre, d'une superficie totale de 160 m2 (80 m2au sol sur deux niveaux), et d'une superficie habitable de 130 m2 (garage + buanderie + cave = 30 m2). Située au milieu de toutes les commodités à pieds, cette maison est dans un quartier calme. Au RDC, vous trouverez une chambre, une buanderie, un coin cuisine d'été, un wc, un garage et une cave. A l'étage, un salon/SAM d'environ 26 m2 donnant sur un balcon d'angle (une projection repensée vous est proposée), une cuisine séparée (avec une projection repensée), 2 chambres, un bureau, une salle d'eau et 1 wc. Chauffage au gaz de ville , à cela se rajouté une isolation double vitrage en bois , et les combles isolés dernièrement. Côté extérieur, la propriété possède 2 entrées sur 2 rues différentes, donnant sur une allée bitumée. La partie jardin en pelouse, a l'opportunité d'avoir un canal qui longe la propriété qui aide à l'arrosage des végétaux. La parcelle de 903 m2 peut faire l'objet d'une deuxième construction (2 lots cadastraux).. Visite virtuelle disponible
. Prix de vente 175 000€ HAI, les honoraires d'agences sont à la charge du vendeur. Contact : Xavier SAGNE (EI) Imoconseil [Coordonnées masquées] Enregistré au RSAC 922 332 671 à Brive Les informations sur les risques auxquels ce bien est exposé sont disponibles sur le site Géorisques : www.georisques.gouv.fr Agent Commercial
Voir plus

Référence: 30130
Honoraires à la charge du vendeur.
Barème des honoraires
DPE
A
B
C
D
E
F
G
GES
A
B
C
D
E
F
G

Prêt immobilier

Vous souhaitez connaître votre capacité d’emprunt et trouver le meilleur crédit immobilier ?
Réaliser une simulation gratuite

Maison à OBJAT
Maison à OBJAT
Maison à OBJAT
Maison à OBJAT
Maison à OBJAT
Maison à OBJAT
Maison à OBJAT
Maison à OBJAT
Maison à OBJAT
Maison à OBJAT
Maison à OBJAT
Maison à OBJAT
Maison à OBJAT
Maison à OBJAT
Ce site est protégé par reCAPTCHA la Politique de confidentialité et les Conditions d’utilisation de Google s’appliquent.
Obtenir un prêt immobilier au meilleur taux ?

En poursuivant votre navigation sans modifier vos paramètres, vous acceptez l'utilisation de cookies susceptibles de réaliser des statistiques de visite. Cliquez ici pour plus d'informations