A vendre - maison de 144 m2 a conde-sur-sarthe

— Conde-Sur-Sarthe 61250 —
233 000 €
144 m² / 1 711 m²
7 pièces
balcon/terrasse

Cette belle maison offre un cadre de vie agréable alliant espace et confort située dans un environnement paisible. Elle se trouve à proximité immédiate du centre d'Alençon et de toutes commodités.

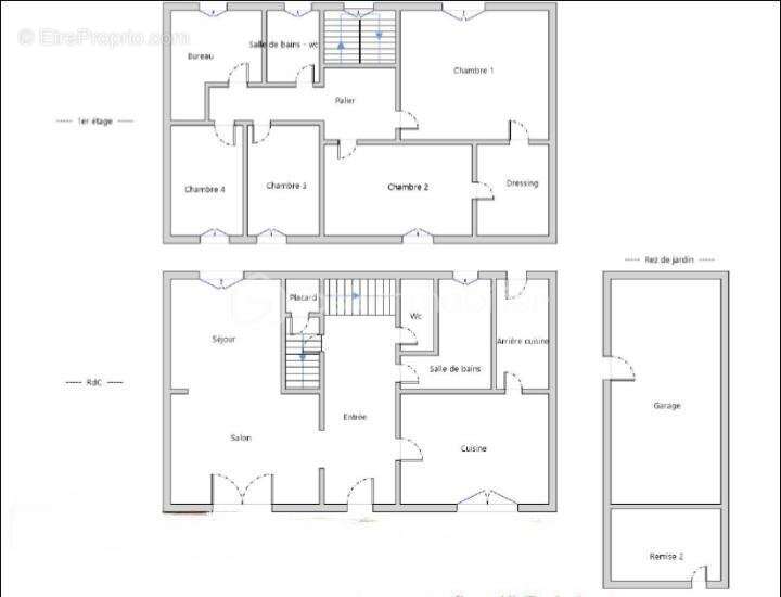
Dès l'entrée, vous serez séduit par une cuisine aménagée et équipée avec un accès à la buanderie et la chaufferie. Un salon lumineux avec son poêle à bois et son coin séjour s'ouvre sur une agréable terrasse. Le rez-de-chaussée dispose également d'une salle d'eau et de WC indépendant.

A l'étage, un palier dessert quatre chambres, dont deux bénéficient d'un dressing commun offrant un bel espace de rangement, un bureau et une salle d'eau supplémentaire avec WC complète cet étage.

Le confort est assuré par un chauffage au gaz de ville et des fenêtres en aluminium à double vitrage.

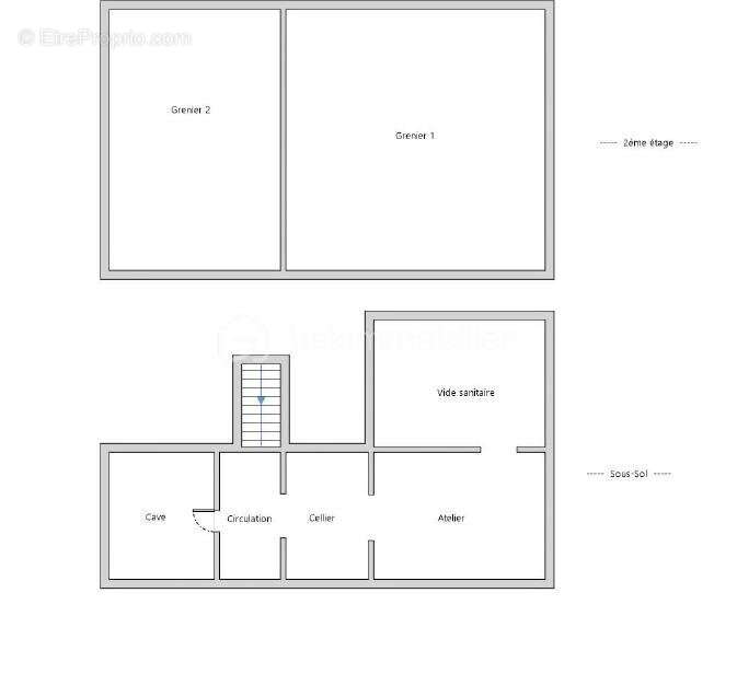
L'extérieur est tout aussi attrayant avec un jardin arboré à l'avant et à l'arrière de la maison. Le sous-sol offre un espace de stockage avec une cave voûtée, un atelier et une buanderie. Plusieurs petites dépendances ainsi qu'un garage à vélo viennent compléter ce bien. Plusieurs places de parking sont également disponible.

Cette maison pleine de charme n'attend plus que vous ! Contactez moi pour plus d'informations et organiser une visite.

Cette annonce référence 280865 vous est présentée par votre agent commercial BSK Immobilier VALERIE DELION (EI) immatriculé au RSAC de LAVAL (53000) sous le numéro 798[Coordonnées masquées]3.

Prix du bien : 233 000,00 €
Les honoraires d'agence sont à la charge du vendeur.

A propos des performances énergétiques :
Date de réalisation du diagnostic énergétique : 03/04/2025
Score DPE : 240 kWhEP/m²/an
Score GES : 39 kgepCO2/m²/an
Montant estimé des dépenses annuelles d'énergie pour un usage standard : entre 2540.00 € et 3480.00 € par an. Prix moyens des énergies indexés sur l'année 2023 (abonnements compris).

Les informations sur les risques auxquels ce bien est exposé sont disponibles sur le site Géorisques : www.georisques.gouv.fr
Voir plus

Référence: 280865
Honoraires à la charge du vendeur.
DPE
A
B
C
D
E
F
G
GES
A
B
C
D
E
F
G

Prêt immobilier

Vous souhaitez connaître votre capacité d’emprunt et trouver le meilleur crédit immobilier ?
Réaliser une simulation gratuite

Maison à CONDE-SUR-SARTHE
Maison à CONDE-SUR-SARTHE
Maison à CONDE-SUR-SARTHE
Maison à CONDE-SUR-SARTHE
Maison à CONDE-SUR-SARTHE
Maison à CONDE-SUR-SARTHE
Maison à CONDE-SUR-SARTHE
Maison à CONDE-SUR-SARTHE
Maison à CONDE-SUR-SARTHE
Maison à CONDE-SUR-SARTHE
Maison à CONDE-SUR-SARTHE
Maison à CONDE-SUR-SARTHE
Maison à CONDE-SUR-SARTHE
Maison à CONDE-SUR-SARTHE
Maison à CONDE-SUR-SARTHE
Maison à CONDE-SUR-SARTHE
Maison à CONDE-SUR-SARTHE
Maison à CONDE-SUR-SARTHE
Ce site est protégé par reCAPTCHA la Politique de confidentialité et les Conditions d’utilisation de Google s’appliquent.
Obtenir un prêt immobilier au meilleur taux ?

En poursuivant votre navigation sans modifier vos paramètres, vous acceptez l'utilisation de cookies susceptibles de réaliser des statistiques de visite. Cliquez ici pour plus d'informations