Bénéficiez des services de nos partenaires locaux soigneusement sélectionnés
pour vous accompagner dans votre parcours d'achat immobilier

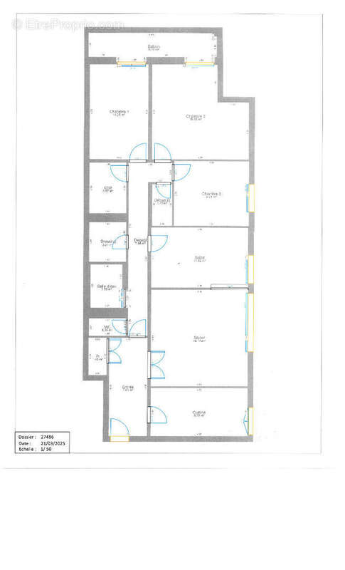
Appartement 5 pièces 108 m2

— Paris-19e 75019 —
735 000 €
108 m²
5 pièces
balcon/terrasseascenseur

Nos partenaires locaux
Belle opportunité rue Jules Romains. Appartement de 5 pièces 108m² à rafraichir avec nombreuses possibilités d'agencements car peu de murs porteurs ! Nous vous proposons un appartement en étage, très lumineux exposition Sud, vue dégagée. Il se compose d'une entrée et couloir avec placards, cuisine indépendante, séjour, 4 chambres, possibilité d'agrandir le séjour avec la chambre attenante, salle de bains, salle d'eau, dressing, débarras. Une cave complète ce bien. Copropriété très bien entretenue avec gardien et très bon conseil syndical. Votre contact au [Coordonnées masquées] (5.00 % honoraires TTC à la charge de l'acquéreur.) Copropriété de 729 lots - dont 267 lots habitation. Charges annuelles : 5800 euros.
Voir plus

Référence: 1869
Bien en copropriété. Nombre de lots : 729. Charges de copropriété : 5800 €. Procédure en cours : Procédure en cours.
Honoraires d'agence de 5% à la charge de l'acquéreur
DPE
A
B
C
D
E
F
G
GES
A
B
C
D
E
F
G

Prêt immobilier

Vous souhaitez connaître votre capacité d’emprunt et trouver le meilleur crédit immobilier ?
Réaliser une simulation gratuite

Appartement à PARIS-19E
Appartement à PARIS-19E
Appartement à PARIS-19E
Appartement à PARIS-19E
Appartement à PARIS-19E
Appartement à PARIS-19E
Appartement à PARIS-19E
Appartement à PARIS-19E
Appartement à PARIS-19E
Appartement à PARIS-19E
Appartement à PARIS-19E
Appartement à PARIS-19E
Appartement à PARIS-19E
Appartement à PARIS-19E
Appartement à PARIS-19E
Appartement à PARIS-19E
Appartement à PARIS-19E
Appartement à PARIS-19E
Ce site est protégé par reCAPTCHA la Politique de confidentialité et les Conditions d’utilisation de Google s’appliquent.
Obtenir un prêt immobilier au meilleur taux ?

En poursuivant votre navigation sans modifier vos paramètres, vous acceptez l'utilisation de cookies susceptibles de réaliser des statistiques de visite. Cliquez ici pour plus d'informations