Bénéficiez des services de nos partenaires locaux soigneusement sélectionnés
pour vous accompagner dans votre parcours d'achat immobilier

A vendre un appartement familial de 3 pieces a neuilly sur seine - bvd bineau

— Neuilly-Sur-Seine 92200 —
940 000 €
91 m²
3 pièces
balcon/terrasseascenseur

Nos partenaires locaux
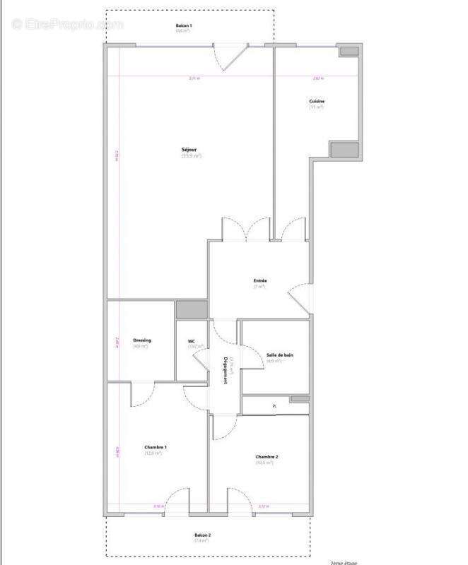
EXCLUSIVITÉ - Neuilly-sur-Seine, Boulevard Bineau - À proximité immédiate de la Porte de Champerret, des commerces, des transports et des écoles prisées (secteur lycée Pasteur).

Situé au 2 ème étage avec ascenseur d'une résidence bien entretenue avec gardien, ce bel appartement familial de 3 pièces d'une surface de 91,52 m² séduit par son agencement fonctionnel, sa luminosité et son environnement verdoyant et calme.

Agencement optimal et volumes généreux :
Une entrée accueillante dessert une cuisine indépendante de 11 m², pouvant être ouverte selon vos envies.

Un spacieux séjour de 34 m² baigné de lumière, prolongé par un balcon avec vue sur le jardin arboré.

L'espace nuit, bien séparé, offre deux grandes chambres sur jardin, dont une avec dressing, et un balcon filant plein de charme.

Salle de bains, WC indépendant et nombreux rangements complètent ce bien.

Le calme d'un jardin intérieur, la proximité immédiate de tous les services, et la clarté de chaque pièce font de cet appartement une opportunité rare sur le secteur.

Informations complémentaires :
Chauffage électrique individuel

DPE : D (établi en septembre 2024)

Une cave en sous-sol pour un rangement pratique

Parking en option au prix de 30 000 €

Les informations sur les risques auxquels ce bien est exposé sont disponibles sur le site Géorisques : www.georisques.gouv.fr
Voir plus

Référence: 767
Bien en copropriété. Nombre de lots : 33. Charges de copropriété : 394 €.
Honoraires d'agence de 4.5% à la charge de l'acquéreur
DPE
A
B
C
D
E
F
G
GES
A
B
C
D
E
F
G

Prêt immobilier

Vous souhaitez connaître votre capacité d’emprunt et trouver le meilleur crédit immobilier ?
Réaliser une simulation gratuite

Appartement à NEUILLY-SUR-SEINE
Appartement à NEUILLY-SUR-SEINE
Appartement à NEUILLY-SUR-SEINE
Appartement à NEUILLY-SUR-SEINE
Appartement à NEUILLY-SUR-SEINE
Appartement à NEUILLY-SUR-SEINE
Appartement à NEUILLY-SUR-SEINE
Appartement à NEUILLY-SUR-SEINE
Appartement à NEUILLY-SUR-SEINE
Appartement à NEUILLY-SUR-SEINE
Appartement à NEUILLY-SUR-SEINE
Appartement à NEUILLY-SUR-SEINE
Appartement à NEUILLY-SUR-SEINE
Appartement à NEUILLY-SUR-SEINE
Appartement à NEUILLY-SUR-SEINE
Appartement à NEUILLY-SUR-SEINE
Ce site est protégé par reCAPTCHA la Politique de confidentialité et les Conditions d’utilisation de Google s’appliquent.
Obtenir un prêt immobilier au meilleur taux ?

En poursuivant votre navigation sans modifier vos paramètres, vous acceptez l'utilisation de cookies susceptibles de réaliser des statistiques de visite. Cliquez ici pour plus d'informations