Bénéficiez des services de nos partenaires locaux soigneusement sélectionnés
pour vous accompagner dans votre parcours d'achat immobilier

Terrain 230m² à saint-morillon

— Saint-Morillon 33650 —
115 000 €
230 m²

Nos partenaires locaux
RARE ! En plein centre du bourg de Saint-Morillon, nous vous proposons ce terrain à bâtir d'environ 230m² avec une constructibilité importante. (Largeur environ 10m)

Zone UA du PLU, possibilité étage (max 8,60m sous faitage), raccordements aux réseaux d'eau et d'électricité effectués, prévoir le tout à l'égout.

Terrain 'libre de constructeur'

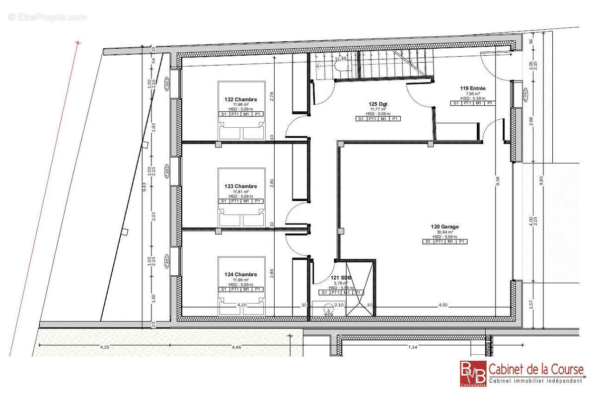
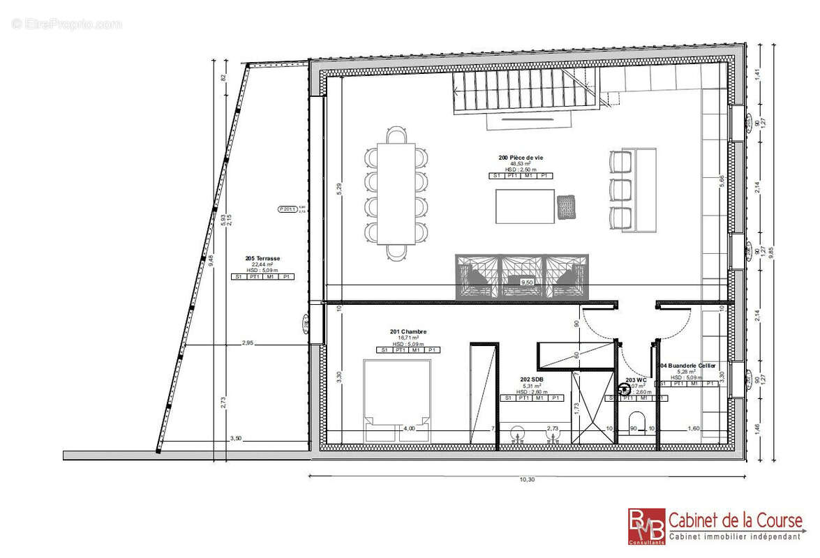
Un permis de construire a été accordé en octobre 2023 pour la réalisation d'une maison 5 pièces de 140m² habitables avec 2 stationnements devant et jardinet arrière plein sud. (PC encore valable à ce jour, dossier consultable sur demande, photo n°3)

Possibilité nouveau permis pour une autre habitation plus ou moins grande, ou un immeuble de rapport comportant 2 à 3 lots (secteur à forte demande locative)


Ecole primaire dans le village, commerces de proximité (épicerie et pharmacie) supermarché à 10min et Bordeaux centre à 35min

Prix fai : 115 000 € (honoraires agence charge vendeur)

Pour toute information complémentaire ou un rdv sur place, vous pouvez nous joindre au [Coordonnées masquées]/[Coordonnées masquées]

Honoraires à la charge du vendeur. Les informations sur les risques auxquels ce bien est exposé sont disponibles sur le site Géorisques : georisques.gouv.fr.
Voir plus

Référence: VT077-COURSE
Honoraires à la charge du vendeur.

Prêt immobilier

Vous souhaitez connaître votre capacité d’emprunt et trouver le meilleur crédit immobilier ?
Réaliser une simulation gratuite

Terrain à SAINT-MORILLON
Terrain à SAINT-MORILLON
Terrain à SAINT-MORILLON
Terrain à SAINT-MORILLON
Terrain à SAINT-MORILLON
Terrain à SAINT-MORILLON
Ce site est protégé par reCAPTCHA la Politique de confidentialité et les Conditions d’utilisation de Google s’appliquent.
Obtenir un prêt immobilier au meilleur taux ?

En poursuivant votre navigation sans modifier vos paramètres, vous acceptez l'utilisation de cookies susceptibles de réaliser des statistiques de visite. Cliquez ici pour plus d'informations