Bénéficiez des services de nos partenaires locaux soigneusement sélectionnés
pour vous accompagner dans votre parcours d'achat immobilier

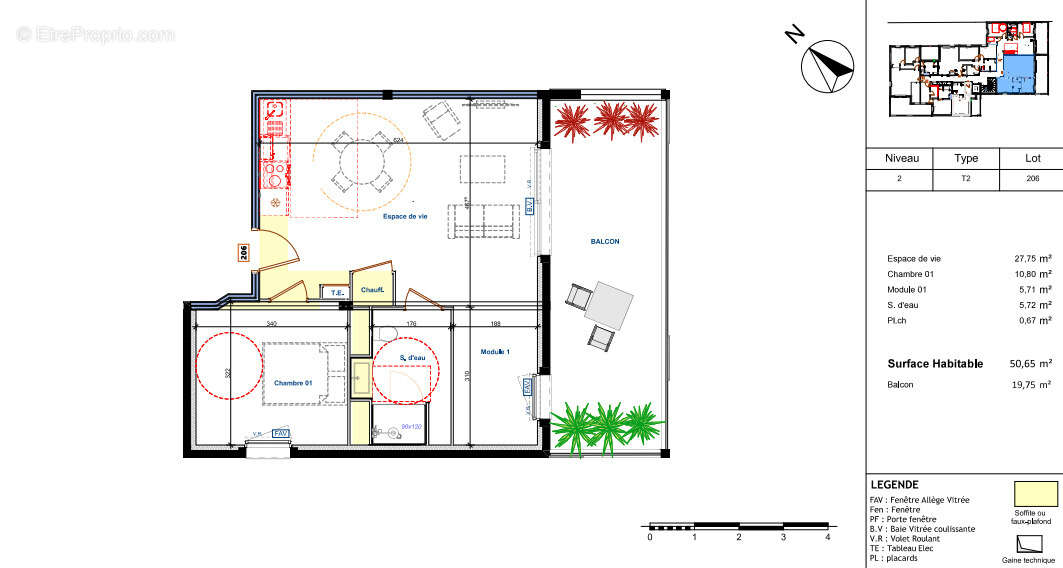
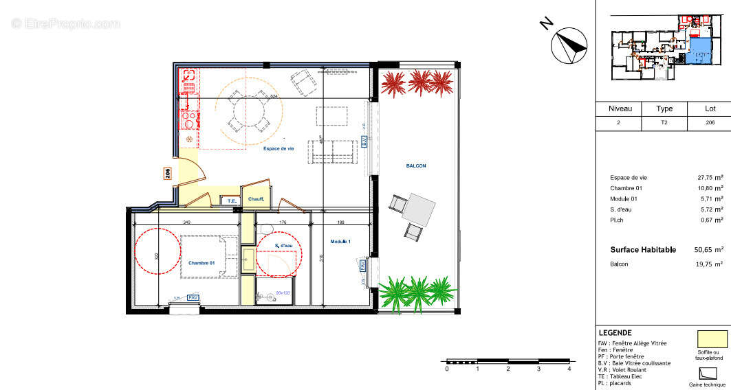
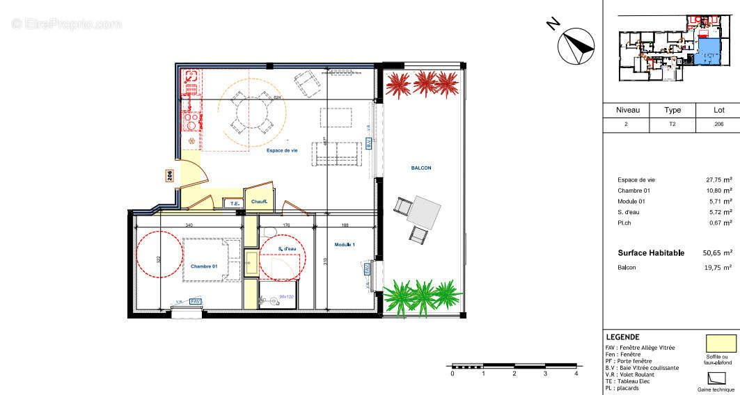
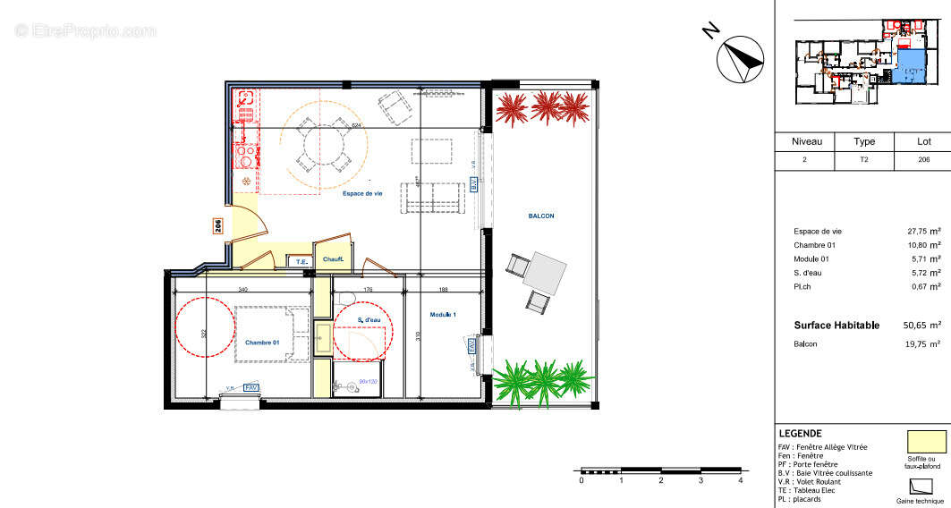
Appartement 51m² à argeles-sur-mer

— Argeles-Sur-Mer 66700 —
259 000 €
51 m²
2 pièces
parkingbalcon/terrasseascenseuraccès handicapé

Nos partenaires locaux
Votre agence 123webimmo l'immobilier au meilleur prix vous présente : ***BAISSE DE PRIX ***
*** FRAIS DE NOTAIRE OFFERTS JUSQU'AU 31 MAI **
Dernier T2 neuf à Argelès-sur-Mer ? Livraison JUILLET 2025 !

Cette résidence se trouve dans un quartier entre plages et c½ur de village. Vous serez à seulement 4 minutes en vélo de la mer et du centre-ville !
DERNIER LOT T2 DISPONIBLE dans une petite résidence à taille humaine de 17 appartements, avec une architecture moderne sur 2 étages et des façades blanches lumineuses.

Le logement :
- T2 confortable avec balcon
- Dernier étage
- Chauffage, rafraîchissement et eau chaude par pompe à chaleur
- Baies vitrées coulissantes, revêtements modernes, rangements intégrés
- Cuisine en option livrée installée
- Parking inclus
- Local vélo sécurisé

Résidence sécurisée avec sas d'entrée , Construction RE 2020 : confort et économies d'énergie garanties !

Avantages :
-Frais de notaire offerts jusqu'au 31 mai
-Livraison Juillet 2025

Contactez nous rapidement pour plus d'infos ou organiser une visite ? Dernière opportunité pour vivre ou investir à Argelès-sur-Mer !

Les informations sur les risques auxquels ce bien est exposé sont disponibles sur le site du gouvernement : https://www.georisques.gouv.fr
Voir plus

Référence: WI_c54728
Honoraires à la charge du vendeur.
Barème des honoraires

Prêt immobilier

Vous souhaitez connaître votre capacité d’emprunt et trouver le meilleur crédit immobilier ?
Réaliser une simulation gratuite

Appartement à ARGELES-SUR-MER
Appartement à ARGELES-SUR-MER
Appartement à ARGELES-SUR-MER
Appartement à ARGELES-SUR-MER
Appartement à ARGELES-SUR-MER
Appartement à ARGELES-SUR-MER
Appartement à ARGELES-SUR-MER
Appartement à ARGELES-SUR-MER
Appartement à ARGELES-SUR-MER
Appartement à ARGELES-SUR-MER
Appartement à ARGELES-SUR-MER
Appartement à ARGELES-SUR-MER
Appartement à ARGELES-SUR-MER
Appartement à ARGELES-SUR-MER
Appartement à ARGELES-SUR-MER
Appartement à ARGELES-SUR-MER
Appartement à ARGELES-SUR-MER
Appartement à ARGELES-SUR-MER
Appartement à ARGELES-SUR-MER
Appartement à ARGELES-SUR-MER
Appartement à ARGELES-SUR-MER
Appartement à ARGELES-SUR-MER
Appartement à ARGELES-SUR-MER
Appartement à ARGELES-SUR-MER
Appartement à ARGELES-SUR-MER
Appartement à ARGELES-SUR-MER
Appartement à ARGELES-SUR-MER
Appartement à ARGELES-SUR-MER
Appartement à ARGELES-SUR-MER
Appartement à ARGELES-SUR-MER
Ce site est protégé par reCAPTCHA la Politique de confidentialité et les Conditions d’utilisation de Google s’appliquent.
Obtenir un prêt immobilier au meilleur taux ?

En poursuivant votre navigation sans modifier vos paramètres, vous acceptez l'utilisation de cookies susceptibles de réaliser des statistiques de visite. Cliquez ici pour plus d'informations