Bénéficiez des services de nos partenaires locaux soigneusement sélectionnés
pour vous accompagner dans votre parcours d'achat immobilier

Maison 5 pièce(s) 110 m2

— Saint-Etienne 42100 —
216 000 €
110 m²
5 pièces

Nos partenaires locaux
En Exclusivité
Maison familiale à vendre (Balcon-Garage-Terrain)

Saint Étienne, secteur Tardy-Colline des Pères

Découvrez cette charmante maison située dans le quartier paisible de Tardy-Colline des Pères, à Saint Étienne.

Ce secteur est apprécié pour son ambiance tranquille, ses espaces verts et sa proximité avec les commodités locales telles que des écoles, des commerces de proximité et des transports en commun. Profitez d'un cadre de vie agréable tout en étant à quelques minutes du centre-ville.

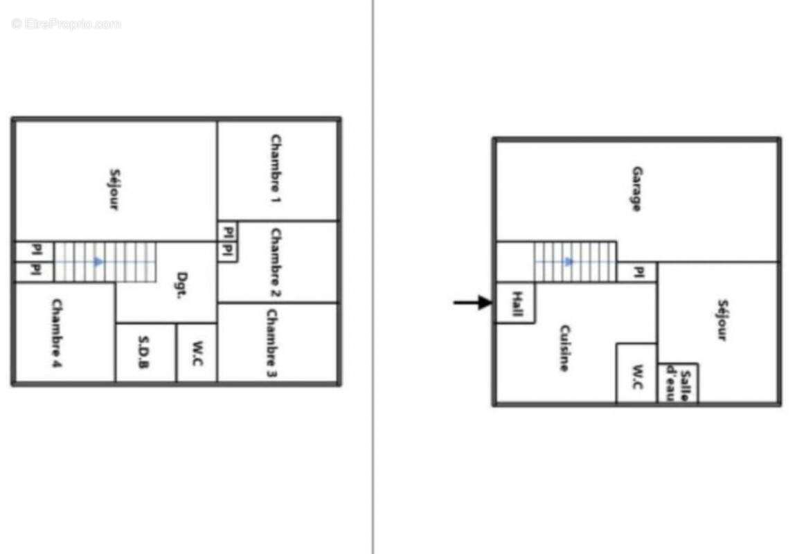
Caractéristiques de la maison :

Cette spacieuse maison se compose de plusieurs niveaux, offrant un grand potentiel pour toute la famille :

- Au Rez-de-chaussée :
- Un Grand garage pratique et accessible.
- Un séjour lumineux, idéal pour des moments conviviaux en famille.
- Une cuisine fonctionnelle, parfaite pour préparer de délicieux repas avec salle a manger.
- Une salle de bain équipée et un WC séparé pour plus de commodité.

- A l'Étage :
- Quatre chambres spacieuses, pouvant accueillir toute la famille ou servir de bureaux.
- Un second WC pour le confort des occupants.
- Un séjour supplémentaire, offrant un espace intime pour se détendre ou recevoir.
+ Comble

La maison s'étend sur un terrain de 610 m², offrant de nombreuses possibilités d'aménagement extérieurs, que ce soit pour créer un jardin, un espace de jeu pour les enfants un coin barbecue est déjà présent ainsi qu'un cabanon en bois.

Ne manquez pas cette opportunité rare d'acquérir une maison fonctionnelle et bien située dans un secteur prisé de Saint Étienne. Contactez-nous pour une visite dès aujourd'hui !

Prix : 216 000 euros honoraires charge vendeur

DPE :D
GES : D

Montant estimé des dépenses annuelles d'énergie pour un usage standard entre 1090 et 1520 euros indexées aux années 2021.

Taxe Foncière 1468 euros
Chauffage individuel Gaz.

Pour visiter et vous accompagner dans votre projet, contactez Nathan RIOS, au [Coordonnées masquées] ou, par courriel à [Coordonnées masquées].

Selon l'article L.561.5 du Code Monétaire et Financier, pour l'organisation de la visite, la présentation d'une pièce d'identité vous sera demandée.
Cette présente annonce a été rédigée sous la responsabilité éditoriale de Nathan RIOS agissant sous le statut d'agent commercial immatriculé au RSAC SAINT ETIENNE 932226848 auprès de SAS PROPRIETES PRIVEES, au capital de 44 920 euros, ZAC LE CHÊNE FERRÉ - 44 ALLÉE DES CINQ CONTINENTS 44120 VERTOU; SIRET 487 624 777 00040, RCS Nantes. Carte Professionnelle Transactions sur immeubles et fonds de commerce (T) et Gestion immobilière (G) n°CPI 44[Coordonnées masquées]10 388 délivrée par la CCI Nantes - Saint Nazaire. Compte séquestre n°3[Coordonnées masquées] BPA SAINT-SEBASTIEN-SUR-LOIRE (44230). Garantie GALIAN-SMABTP - 89 rue de la Boétie, 75008 Paris - n°28137 J pour 2 000 000 euros pour T et 120 000 euros pour G. Assurance responsabilité civile professionnelle par GALIAN-SMABTP n° de police 28137.J

Mandat réf : 404982 - Le professionnel garantit et sécurise votre projet immobilier.

Nathan RIOS (EI) Agent Commercial - Numéro RSAC : SAINT ETIENNE 932226848 - .
Voir plus

Référence: 404982NRIO
Honoraires à la charge du vendeur.
DPE
A
B
C
D
E
F
G
GES
A
B
C
D
E
F
G

Prêt immobilier

Vous souhaitez connaître votre capacité d’emprunt et trouver le meilleur crédit immobilier ?
Réaliser une simulation gratuite

Maison à SAINT-ETIENNE
Maison à SAINT-ETIENNE
Maison à SAINT-ETIENNE
Maison à SAINT-ETIENNE
Maison à SAINT-ETIENNE
Maison à SAINT-ETIENNE
Maison à SAINT-ETIENNE
Maison à SAINT-ETIENNE
Maison à SAINT-ETIENNE
Maison à SAINT-ETIENNE
Ce site est protégé par reCAPTCHA la Politique de confidentialité et les Conditions d’utilisation de Google s’appliquent.
Obtenir un prêt immobilier au meilleur taux ?

En poursuivant votre navigation sans modifier vos paramètres, vous acceptez l'utilisation de cookies susceptibles de réaliser des statistiques de visite. Cliquez ici pour plus d'informations