Pas de appartement à Villemoustaussou pour le moment. Découvrez dès maintenant les appartements dans le département Aude.
Bénéficiez des services de nos partenaires locaux soigneusement sélectionnés
pour vous accompagner dans votre parcours d'achat immobilier

Terrain 325m² à saint-cyprien

— Saint-Cyprien 66750 —
159 000 €
325 m²

Nos partenaires locaux
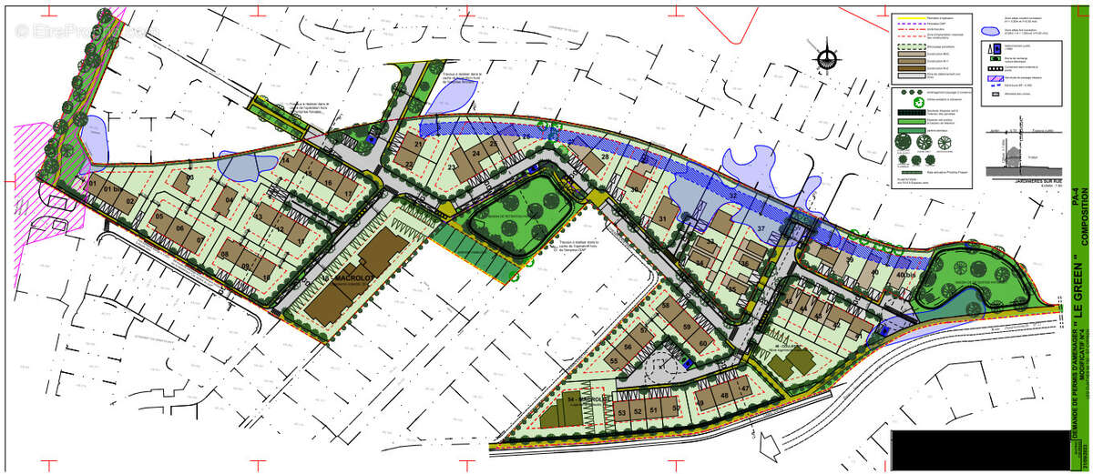
Trois parcelles constructibles dans le lotissement 'Le Green' à Saint-Cyprien.OFFRES EXCEPTIONNELLES ! Lot numéro 31 d'une surface de 966 m² au prix de 299 900EUR au lieu de 342 000EURLot numéro 42 d'une surface de 325 m² au prix de 149 000EUR au lieu de 159 000EURLot numéro 47 d'une surface de 400 m² au prix de 170 000EUR au lieu de 185 000EURContactez moi ==> Julien GIMENO [Coordonnées masquées] (E. I.) RSAC 900932401 PERPIGNAN.Honoraires à la charge du vendeur.Les informations sur les risques auxquels ce bien est exposé sont disponibles sur le site Géorisques : www.georisques.gouv.fr.Informations LOI ALUR : Honoraires charge vendeur. (gedeon_57460_31158102)
Voir plus

Référence: AG839-1358
Honoraires à la charge du vendeur.
GES
A
B
C
D
E
F
G

Prêt immobilier

Vous souhaitez connaître votre capacité d’emprunt et trouver le meilleur crédit immobilier ?
Réaliser une simulation gratuite

Photo 1 - Terrain à SAINT-CYPRIEN
Photo 1
Photo 2 - Terrain à SAINT-CYPRIEN
Photo 2
Photo 3 - Terrain à SAINT-CYPRIEN
Photo 3
Ce site est protégé par reCAPTCHA la Politique de confidentialité et les Conditions d’utilisation de Google s’appliquent.
Obtenir un prêt immobilier au meilleur taux ?

En poursuivant votre navigation sans modifier vos paramètres, vous acceptez l'utilisation de cookies susceptibles de réaliser des statistiques de visite. Cliquez ici pour plus d'informations