Bénéficiez des services de nos partenaires locaux soigneusement sélectionnés
pour vous accompagner dans votre parcours d'achat immobilier

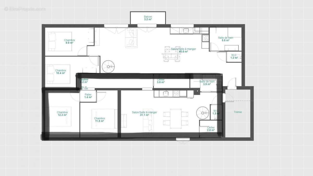
Appartement 4 pices 74.77m² 86000 euros

— Maiche 25120 —
86 000 €
74 m²
4 pièces

Nos partenaires locaux
REF 334/2433DJ : Située en plein coeur du centre ville de Maiche, venez découvrir cette belle surface brute en duplex de 74.77m2, avec grande hauteur sous plafond située au 2ème et dernier étage d'un bâtiment emblématique de Maiche.
Venez profiter de ce T4 à aménager suivant vos goûts et vos envies.
Fenêtres PVC double vitrage avec volets roulants électriques et fenêtres de toit neuves .
En exclusivité Suisse Immo, contactez Jouillerot Daniel au [Coordonnées masquées] .
Voir plus

Référence: 334-MAI
Honoraires à la charge du vendeur.

Prêt immobilier

Vous souhaitez connaître votre capacité d’emprunt et trouver le meilleur crédit immobilier ?
Réaliser une simulation gratuite

Appartement à MAICHE
Appartement à MAICHE
Appartement à MAICHE
Ce site est protégé par reCAPTCHA la Politique de confidentialité et les Conditions d’utilisation de Google s’appliquent.
Obtenir un prêt immobilier au meilleur taux ?

En poursuivant votre navigation sans modifier vos paramètres, vous acceptez l'utilisation de cookies susceptibles de réaliser des statistiques de visite. Cliquez ici pour plus d'informations