Bénéficiez des services de nos partenaires locaux soigneusement sélectionnés
pour vous accompagner dans votre parcours d'achat immobilier

Vente maison 5 pièces de 128m² - 13440 cabannes

— Cabannes 13440 —
399 000 €
128 m² / 584 m²
5 pièces
parkingjardin

Nos partenaires locaux
Casavo vous propose à la vente, en exclusivité, cette charmante maison de 5 pièces de 128 m² idéalement située Chemin de Saint-Roch à Cabannes, dans un cadre authentique et paisible.

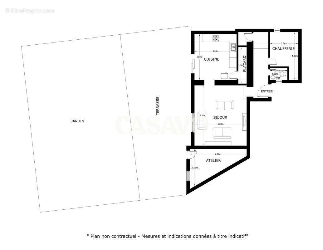
Nichée sur un joli terrain exposé plein Sud d'environ 600 m², cette maison datant de 1800 saura vous séduire par son charme provençal et ses volumes généreux. Elle offre au rez-de-chaussée une lumineuse pièce de vie d'environ 43 m², une cuisine séparée typiquement provençale avec poutres apparentes, et un WC indépendant.

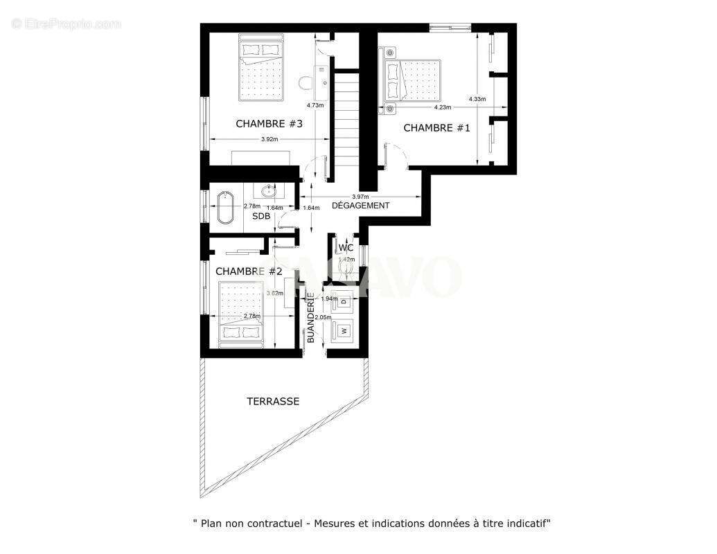
À l'étage, vous découvrirez trois chambres spacieuses, une salle de bains, un WC séparé, ainsi qu'une buanderie très pratique, avec un accès direct à un agréable balcon extérieur.

Cette maison bénéficie d'une exposition optimale au sud, d'un superbe potentiel d'aménagement avec la possibilité d'une piscine, et d'un stationnement facile pour plusieurs véhicules. À proximité immédiate des écoles et des commerces accessibles à pied, elle vous garantit un quotidien pratique et agréable.

Quelques travaux de rafraîchissement permettront à cette maison pleine de charme de révéler tout son potentiel.

Une opportunité idéale pour les amoureux d'authenticité et d'espaces généreux. N'attendez plus, contactez-nous rapidement pour une visite !

Ce bien est commercialisé par Casavo.

Intéressé par ce bien ? Plus d'informations sur le site de Casavo.
Voir plus

Référence: 32723
Honoraires à la charge du vendeur.
DPE
A
B
C
D
E
F
G
GES
A
B
C
D
E
F
G

Prêt immobilier

Vous souhaitez connaître votre capacité d’emprunt et trouver le meilleur crédit immobilier ?
Réaliser une simulation gratuite

Maison à CABANNES
Maison à CABANNES
Maison à CABANNES
Maison à CABANNES
Maison à CABANNES
Maison à CABANNES
Maison à CABANNES
Maison à CABANNES
Maison à CABANNES
Maison à CABANNES
Maison à CABANNES
Maison à CABANNES
Maison à CABANNES
Maison à CABANNES
Maison à CABANNES
Ce site est protégé par reCAPTCHA la Politique de confidentialité et les Conditions d’utilisation de Google s’appliquent.
Obtenir un prêt immobilier au meilleur taux ?

En poursuivant votre navigation sans modifier vos paramètres, vous acceptez l'utilisation de cookies susceptibles de réaliser des statistiques de visite. Cliquez ici pour plus d'informations