Appartement 4 pièce(s)

— Saint-Die-Des-Vosges 88100 —
109 500 €
133 m²
4 pièces

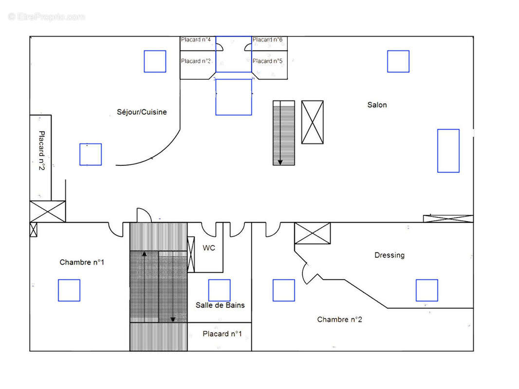
Idéalement situé sur le bord des quais arborés, des chemins de promenade le long de la Meurthe et à proximité directe du centre-ville, appartement avec poutres apparentes parfaitement entretenues. Au 3e et dernier étage d'une petite copropriété (7 copropriétaires) aux faibles charges (syndic bénévole, pas de travaux à prévoir), l'appartement, traversant, profite d'une excellente luminosité. Le bien se compose : - D'une vaste pièce de vie d'une surface de 70 m² comprenant espace séjour et salle à manger ; - D'une cuisine équipée (gazinière, hotte, lave-vaisselle, réfrigérateur, évier) avec bar, ouverte sur le séjour ; - D'une chambre principale de belle taille - D'une deuxième chambre - D'un bureau/ dressing pouvant servir de 3ème chambre - D'une salle de bain avec baignoire, double vasques, rangements intégrés et VMC; - D'un WC séparé. L'appartement est également vendu avec : Une cave saine, sur dalle béton, idéale pour stockage et vélos ; 2 places de parking privatives sécurisées par portail électrique. Charges de copropriétés mensuelles (2024) : 40 euros (assurance, électricité des communs, entretien parking et espace vert, maintenance portail) Taxe foncière (2023) : 878 euros Ordures ménagères : 183 euros Isolation des murs périphériques : 100 mm Laine de verre Isolation sous toiture : 200 mm Laine de verre. Volets : Électriques et manuels. Vitrage : Velux double vitrage bois. DPE : E (tient compte de la réforme du coefficient de déperdition prévue pour septembre 2025). Agence Immobilière LOR'N HABITAT 4 place de l'église 54670 Custines Le numéro de téléphone indiqué est la ligne directe de Mr Quentin Gourgouillon Retrouvez l'ensemble de nos biens et plus de photos sur notre site internet. Référence annonce : 686 Les honoraires sont à la charge du vendeur
Voir plus

Référence: 766
Honoraires à la charge du vendeur.
DPE
A
B
C
D
E
F
G
GES
A
B
C
D
E
F
G

Prêt immobilier

Vous souhaitez connaître votre capacité d’emprunt et trouver le meilleur crédit immobilier ?
Réaliser une simulation gratuite

Appartement à SAINT-DIE-DES-VOSGES
Appartement à SAINT-DIE-DES-VOSGES
Appartement à SAINT-DIE-DES-VOSGES
Appartement à SAINT-DIE-DES-VOSGES
Appartement à SAINT-DIE-DES-VOSGES
Appartement à SAINT-DIE-DES-VOSGES
Appartement à SAINT-DIE-DES-VOSGES
Appartement à SAINT-DIE-DES-VOSGES
Appartement à SAINT-DIE-DES-VOSGES
Appartement à SAINT-DIE-DES-VOSGES
Appartement à SAINT-DIE-DES-VOSGES
Appartement à SAINT-DIE-DES-VOSGES
Appartement à SAINT-DIE-DES-VOSGES
Appartement à SAINT-DIE-DES-VOSGES
Appartement à SAINT-DIE-DES-VOSGES
Ce site est protégé par reCAPTCHA la Politique de confidentialité et les Conditions d’utilisation de Google s’appliquent.
Obtenir un prêt immobilier au meilleur taux ?

En poursuivant votre navigation sans modifier vos paramètres, vous acceptez l'utilisation de cookies susceptibles de réaliser des statistiques de visite. Cliquez ici pour plus d'informations