Bénéficiez des services de nos partenaires locaux soigneusement sélectionnés
pour vous accompagner dans votre parcours d'achat immobilier

Port fréjus : appartement t2 récent

— Frejus 83600 —
240 000 €
40 m²
2 pièces
parkingbalcon/terrasseascenseur

Nos partenaires locaux
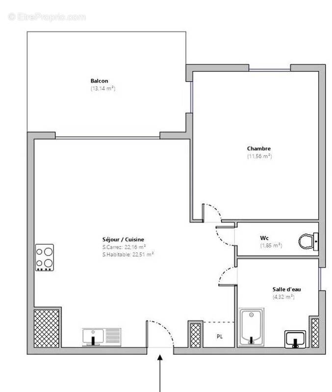
Appartement T2 de 40 m² au sein d'une résidence récente avec ascenseur à Port Fréjus, offrant un cadre de vie calme et privilégié.

Idéalement situé au pied du canal, cet appartement vous permet de profiter d'un environnement paisible tout en étant à seulement quelques minutes à pied de la mer.
Tous les commerces de proximité sont également facilement accessibles, garantissant un quotidien des plus pratiques.

Un Intérieur Fonctionnel et Lumineux
L'appartement se compose d'un séjour lumineux de 22 m² ouvert sur une cuisine, créant un espace de vie convivial et agréable.
Il dispose également d'une chambre confortable de 12 m², d'une salle d'eau et d'un WC indépendant.

Profitez d'une terrasse ensoleillée de 13 m², parfaite pour vos moments de détente en extérieur et une cave est comprise

Mais ce qui rend ce bien véritablement exceptionnel, c'est la possibilité en sus d'un grand garage fermé de 14 m².
Ne vous souciez plus du stationnement et bénéficiez d'un espace de rangement supplémentaire indispensable, des atouts extrêmement recherchés et rares dans ce secteur prisé de Port Fréjus.

Que ce soit pour un pied-à-terre, un investissement locatif ou une résidence principale, cet appartement offre une opportunité à ne pas manquer ! La présente annonce immobilière a été rédigée sous la responsabilité éditoriale de l'agent commercial mandataire en immobilier. Olivier SABOURIN
Voir plus

Référence: 11588
Barème des honoraires
DPE
A
B
C
D
E
F
G
GES
A
B
C
D
E
F
G

Prêt immobilier

Vous souhaitez connaître votre capacité d’emprunt et trouver le meilleur crédit immobilier ?
Réaliser une simulation gratuite

Appartement à FREJUS
Appartement à FREJUS
Appartement à FREJUS
Appartement à FREJUS
Appartement à FREJUS
Appartement à FREJUS
Ce site est protégé par reCAPTCHA la Politique de confidentialité et les Conditions d’utilisation de Google s’appliquent.
Obtenir un prêt immobilier au meilleur taux ?

En poursuivant votre navigation sans modifier vos paramètres, vous acceptez l'utilisation de cookies susceptibles de réaliser des statistiques de visite. Cliquez ici pour plus d'informations