Bénéficiez des services de nos partenaires locaux soigneusement sélectionnés
pour vous accompagner dans votre parcours d'achat immobilier

Appartement 45m² - villeneuve saint denis - 77174

— Villeneuve-Saint-Denis 77174 —
218 000 €
44 m²
2 pièces
parkingbalcon/terrasseascenseur

Nos partenaires locaux
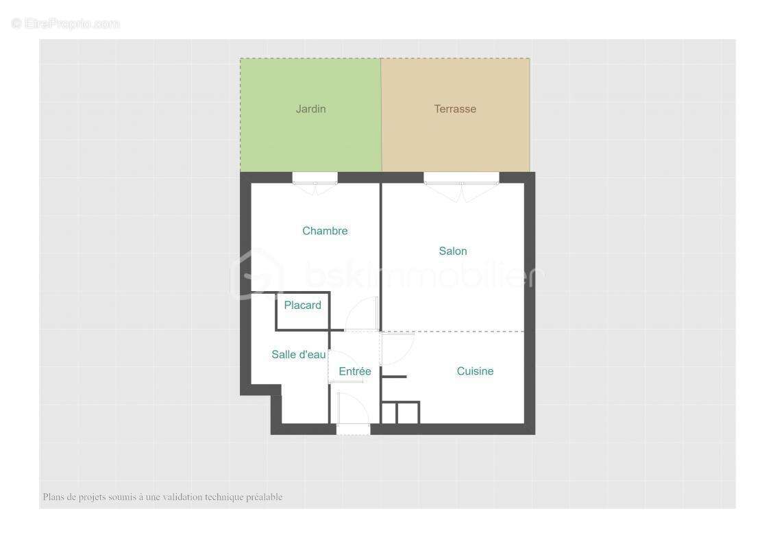
Dans une résidence récente et très calme située dans un village proche de Disney et Val d'Europe, vous trouverez votre havre de paix dans ce rez-de-jardin lumineux.

Vous tomberez sous le charme de cet appartement doté d'une belle entrée qui vous donnera accès sur les trois pièces principales:
Une salle d'eau aux normes PMR équipée d'un wc et d'une douche.
Une chambre de 11m² avec un grand placard et d'une fenêtre donnant sur le jardin.
Enfin, vous aurez accès à la belle pièce à vivre de 23m² avec sa cuisine équipée fonctionnelle et ouverte sur un séjour baigné par la lumière.

Vous pourrez profiter d'un extérieur de 20m² bien exposé et idéal pour passer des moments uniques.

Une place de parking complète ce bien.

Cette annonce référence 286052 vous est présentée par votre agent commercial BSK Immobilier JÉRÉMY DA SILVA (EI) immatriculé au RSAC de MELUN (77000) sous le numéro 9[Coordonnées masquées]014.

Prix du bien : 218 000,00 €
Les honoraires d'agence sont à la charge du vendeur.

A propos de la copropriété :
Pas de procédure en cours.
Nombre de lots : 70
Charges prévisionnelles annuelles : 1 600,00 €

DPE vierge.

Les informations sur les risques auxquels ce bien est exposé sont disponibles sur le site Géorisques : www.georisques.gouv.fr
Voir plus

Référence: 286052
Bien en copropriété. Nombre de lots : 70. Charges de copropriété : 133 €.
Honoraires à la charge du vendeur.

Prêt immobilier

Vous souhaitez connaître votre capacité d’emprunt et trouver le meilleur crédit immobilier ?
Réaliser une simulation gratuite

Appartement à VILLENEUVE-SAINT-DENIS
Appartement à VILLENEUVE-SAINT-DENIS
Appartement à VILLENEUVE-SAINT-DENIS
Appartement à VILLENEUVE-SAINT-DENIS
Appartement à VILLENEUVE-SAINT-DENIS
Appartement à VILLENEUVE-SAINT-DENIS
Appartement à VILLENEUVE-SAINT-DENIS
Appartement à VILLENEUVE-SAINT-DENIS
Appartement à VILLENEUVE-SAINT-DENIS
Appartement à VILLENEUVE-SAINT-DENIS
Appartement à VILLENEUVE-SAINT-DENIS
Appartement à VILLENEUVE-SAINT-DENIS
Appartement à VILLENEUVE-SAINT-DENIS
Appartement à VILLENEUVE-SAINT-DENIS
Ce site est protégé par reCAPTCHA la Politique de confidentialité et les Conditions d’utilisation de Google s’appliquent.
Obtenir un prêt immobilier au meilleur taux ?

En poursuivant votre navigation sans modifier vos paramètres, vous acceptez l'utilisation de cookies susceptibles de réaliser des statistiques de visite. Cliquez ici pour plus d'informations