Bénéficiez des services de nos partenaires locaux soigneusement sélectionnés
pour vous accompagner dans votre parcours d'achat immobilier

Appartement 66m² à perpignan

— Perpignan 66000 —
230 000 €
67 m²
3 pièces
parkingbalcon/terrasseascenseuraccès handicapé

Nos partenaires locaux
Dernière opportunité - T3 neuf avec grande terrasse dans le quartier des Platanes à Perpignan

Confort moderne, emplacement recherché, livraison immédiate.

Au cœur du quartier résidentiel et prisé des Platanes à Perpignan, à quelques minutes seulement du centre historique, ce dernier appartement T3 neuf représente une opportunité rare pour habiter ou investir dans un cadre de vie de qualité.

Situé au 2? étage d’une résidence intimiste à l’architecture contemporaine, ce logement traversant Nord-Sud offre des espaces lumineux, bien pensés et ouverts sur l’extérieur. Il bénéficie d’un environnement calme, d’un accès facile aux commodités, et de prestations techniques modernes garantissant confort et performance énergétique.

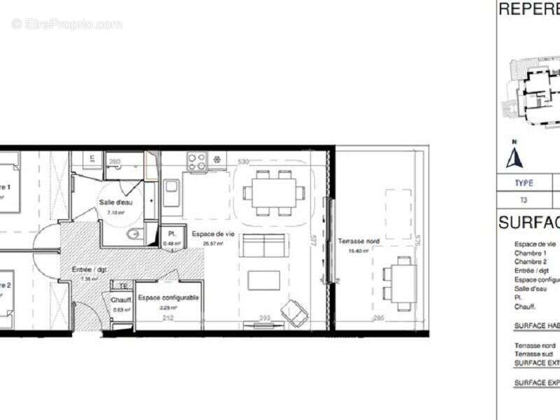
Un agencement soigné et fonctionnel

Avec une surface habitable de 66,90 m², l’appartement propose une distribution intérieure optimisée :
Un séjour spacieux de 26,85 m² ouvrant sur deux grandes terrasses, parfait pour profiter de l’extérieur en toute saison
Deux chambres confortables de 11,85 m² et 9,35 m²
Une salle d’eau moderne de 7,10 m²
Un WC indépendant
Un dégagement de 7,35 m²
Un espace polyvalent de 3,30 m², idéal pour un bureau, un dressing ou du rangement
L’atout majeur : une surface extérieure totale de 32,30 m² répartie sur deux terrasses (orientation Nord et Sud), offrant une vraie continuité de vie entre intérieur et extérieur.

Un confort de vie moderne et performant

Conçu pour répondre aux exigences actuelles de confort et de sobriété énergétique, l’appartement est équipé d’un système de pompe à chaleur 3 en 1, assurant le chauffage, la climatisation et la production d’eau chaude.
Le chauffage par vecteur air libère les murs des radiateurs, facilitant l’aménagement intérieur. L’isolation phonique et thermique garantit un cadre de vie paisible et économe.

Un emplacement stratégique à Perpignan

Le quartier des Platanes combine calme résidentiel et proximité urbaine.
Vous êtes à seulement :

10 minutes à pied de la gare SNCF
100 mètres d’un arrêt de bus
À proximité immédiate des commerces, écoles, services, et du Square Bir Hakeim, agréable espace vert du quartier.

Informations clés

Surface habitable : 66,90 m²
Terrasse : 32,30 m²
Étage : 2?
Exposition : Traversant Nord-Sud
Stationnement : 1 place de parking incluse

Prix :

TVA normale (20 %) : 230 000 €
TVA réduite (5,5 % - zone ANRU, sous conditions) : 202 208 €
Loyer estimé : 788 € / mois
Rentabilité locative estimée : 4,11 %
Prix au m² : 3 248 €

Pourquoi ce bien est une opportunité ?

Il s’agit du dernier T3 disponible dans cette résidence de standing, livrée et habitable immédiatement.
Éligible à la TVA réduite en zone ANRU, il permet aux primo-accédants ou investisseurs sous conditions de bénéficier d’un prix particulièrement attractif.

Pour organiser une visite ou obtenir des informations complémentaires, contactez-nous :
AGENCE IMMOBILIÈRE GEGB
[Coordonnées masquées]
www.immo66-gegb.fr

Les informations sur les risques auxquels ce bien est exposé sont disponibles sur le site Géorisques : www.georisques.gouv.fr
Voir plus

Référence: 40
Bien en copropriété. Nombre de lots : 25.
Honoraires à la charge du vendeur.

Prêt immobilier

Vous souhaitez connaître votre capacité d’emprunt et trouver le meilleur crédit immobilier ?
Réaliser une simulation gratuite

Appartement à PERPIGNAN
Appartement à PERPIGNAN
Appartement à PERPIGNAN
Appartement à PERPIGNAN
Appartement à PERPIGNAN
Appartement à PERPIGNAN
Appartement à PERPIGNAN
Appartement à PERPIGNAN
Appartement à PERPIGNAN
Ce site est protégé par reCAPTCHA la Politique de confidentialité et les Conditions d’utilisation de Google s’appliquent.
Obtenir un prêt immobilier au meilleur taux ?

En poursuivant votre navigation sans modifier vos paramètres, vous acceptez l'utilisation de cookies susceptibles de réaliser des statistiques de visite. Cliquez ici pour plus d'informations