Maison 80m² à marbache

— Marbache 54820 —
144 000 €
80 m² / 140 m²
5 pièces
parkingjardin

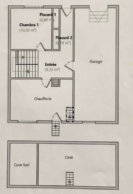
Situee dans un quartier calme de MARBACHE (54820), cette maison semi-mitoyenne d'environ 80 m2 offre un cadre de vie agreable et paisible., , Au rez-de-chaussee, vous trouverez un couloir avec placard et petit hall, une chambre (10,1 m2), un garage (25 m2) ainsi qu'une cave/cellier avec acces au jardin., , A l'etage, la maison comprends un hall desservant deux chambres avec placards (10 et 11 m2), une cuisine (9,7 m2), un salon/salle a manger lumineux (15,5 m2), une salle de bain et un wc separe., , Un grenier sur dalle beton amenageable, permet d'envisager un agrandissement de l'espace habitable., , Un jardin de 140 m2 sur l'arriere, agremente au fond d'un petit ruisseau, invite a la detente et a profiter des beaux jours., , Idealement situe, ce bien beneficie d'un emplacement privilegie avec les axes autoroutiers a seulement 5 minutes, une pharmacie, des medecins et commerces a deux pas, des ecoles sur place ainsi que la gare et les transports en bus a proximite., Un cadre de vie pra...
Voir plus

Référence: V2353

Prêt immobilier

Vous souhaitez connaître votre capacité d’emprunt et trouver le meilleur crédit immobilier ?
Réaliser une simulation gratuite

Maison à MARBACHE
Maison à MARBACHE
Maison à MARBACHE
Maison à MARBACHE
Maison à MARBACHE
Maison à MARBACHE
Maison à MARBACHE
Maison à MARBACHE
Maison à MARBACHE
Ce site est protégé par reCAPTCHA la Politique de confidentialité et les Conditions d’utilisation de Google s’appliquent.
Obtenir un prêt immobilier au meilleur taux ?

En poursuivant votre navigation sans modifier vos paramètres, vous acceptez l'utilisation de cookies susceptibles de réaliser des statistiques de visite. Cliquez ici pour plus d'informations