Bénéficiez des services de nos partenaires locaux soigneusement sélectionnés
pour vous accompagner dans votre parcours d'achat immobilier

Chalet 6 chambres avec piscine

— Magland 74300 —
890 000 €
260 m²
9 pièces
piscine

Nos partenaires locaux
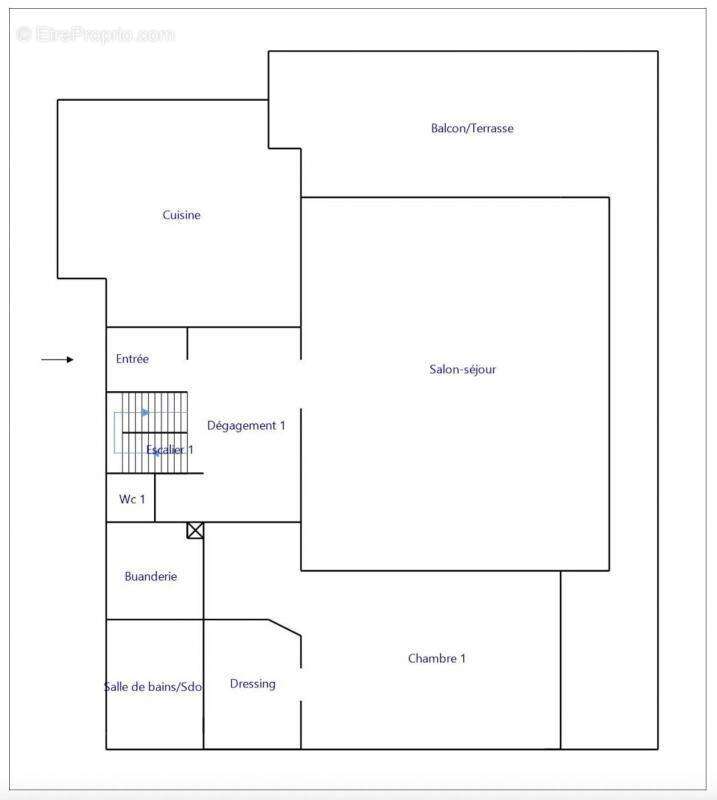
Situé dans un secteur calme et recherché, à quelques minutes de Sallanches, ce magnifique chalet familial d'une surface totale d'environ 260m2 implanté sur un terrain de 2200 m² a été entièrement rénové en 2018.

Edifié sur 3 niveaux il est composé comme suit :
Au rez-de-chaussée une pièce de vie lumineuse avec cheminée et donnant sur une terrasse exposée sud, une grande cuisine équipée et une suite parentale avec dressing, salle de bain, douche, wc séparé et buanderie.

A l'étage, 5 grandes chambres avec placards et accès au balcon filant, 2 salles de bain et un wc séparé.

Au rez-de-jardin on trouve la chaufferie, un cellier, un wc et un grand volume aménageable selon vos envies en salle de jeux, atelier, ou cuisine d'été donnant sur une la terrasse.

A l'extérieur un superbe jardin plat avec sa piscine chauffée par pompe à chaleur, et 2 mazots.

Garage fermé, nombreuses places de parking. Honoraires à la charge du vendeur - Montant estimé des dépenses annuelles d'énergie pour un usage standard, établi à partir des prix de l'énergie de l'année 2021 : 4655€ ~ 6300€ - Les informations sur les risques auxquels ce bien est exposé sont disponibles sur le site Géorisques : www.georisques.gouv.fr - Benoit SERRE - Agent commercial - EI - RSAC Annecy 507 462 745
Voir plus

Référence: 85759765
Honoraires à la charge du vendeur.
DPE
A
B
C
D
E
F
G
GES
A
B
C
D
E
F
G

Prêt immobilier

Vous souhaitez connaître votre capacité d’emprunt et trouver le meilleur crédit immobilier ?
Réaliser une simulation gratuite

Maison à MAGLAND
Maison à MAGLAND
Maison à MAGLAND
Maison à MAGLAND
Maison à MAGLAND
Maison à MAGLAND
Maison à MAGLAND
Maison à MAGLAND
Maison à MAGLAND
Maison à MAGLAND
Maison à MAGLAND
Maison à MAGLAND
Maison à MAGLAND
Maison à MAGLAND
Maison à MAGLAND
Maison à MAGLAND
Maison à MAGLAND
Maison à MAGLAND
Maison à MAGLAND
Maison à MAGLAND
Ce site est protégé par reCAPTCHA la Politique de confidentialité et les Conditions d’utilisation de Google s’appliquent.
Obtenir un prêt immobilier au meilleur taux ?

En poursuivant votre navigation sans modifier vos paramètres, vous acceptez l'utilisation de cookies susceptibles de réaliser des statistiques de visite. Cliquez ici pour plus d'informations