Bénéficiez des services de nos partenaires locaux soigneusement sélectionnés
pour vous accompagner dans votre parcours d'achat immobilier

Exclusivité - t4 en duplex au dernier étage avec terrasse et balcon !

— Paris-18e 75018 —
882 000 €
95 m²
4 pièces
balcon/terrasse

Nos partenaires locaux

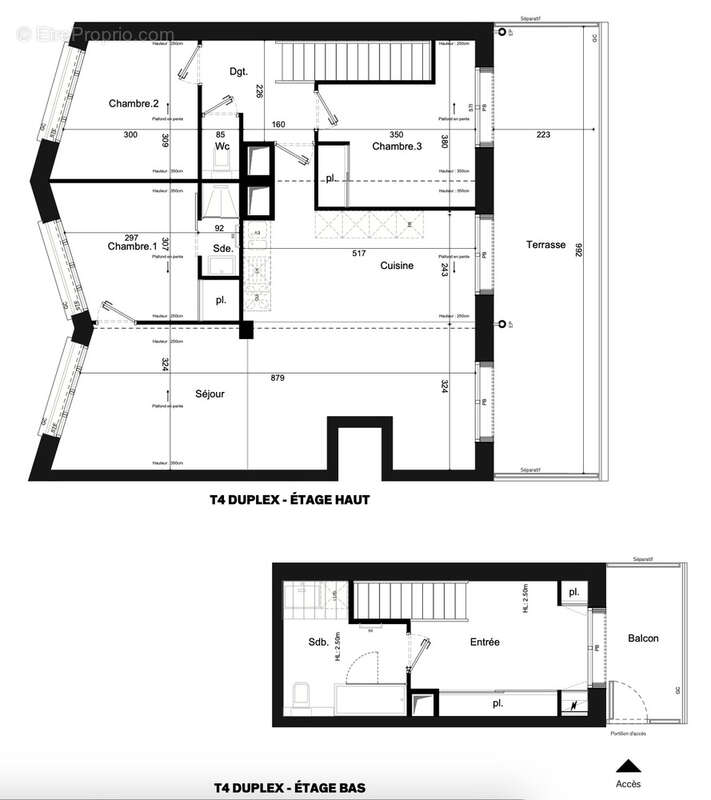
En EXCLUSIVITÉ, superbe T4 de 94,80m2 au dernier étage d'un immeuble, aux prestations de grande qualité.
Située en bordure d'un nouveau parc de plus de 6 hectares, à quelques pas de la station Rosa Parks, ce bien d'exception se compose, au premier niveau, d’une entrée spacieuse de 10 m2, d’une salle de bain et d'un balcon de 5,70m2.
À l’étage supérieur, vous bénéficiez d'un vaste séjour avec cuisine ouverte de près de 40 m2,ouvert sur une terrasse de 23,30 m2. L’espace nuit comprend trois chambres (9 m2, 9,6 m2 et 10,5 m2), une salle d’eau et des WC séparés.
L'adresse s'inscrit au sein d'un nouveau quartier métropolitain qui se veut exemplaire, ambitieux et environnementalement vertueux. Vous profiterez d'un cadre exceptionnel avec une offre résidentielle de qualité, des commerces de proximité et un nouveau groupe scolaire de 12 classes. La proximité immédiate des transports (Métro 12, Tram 3b, RER E) est idéale pour rejoindre Montmartre, le coeur de Paris ou Le Millénaire en 10 min.
Contactez-nous pour plus d'informations !
Voir plus

Bien en copropriété. Nombre de lots : 35. Charges de copropriété : 3445 €.
Barème des honoraires
DPE
A
B
C
D
E
F
G
GES
A
B
C
D
E
F
G

Prêt immobilier

Vous souhaitez connaître votre capacité d’emprunt et trouver le meilleur crédit immobilier ?
Réaliser une simulation gratuite

Appartement à PARIS-18E
Appartement à PARIS-18E
Appartement à PARIS-18E
Appartement à PARIS-18E
Ce site est protégé par reCAPTCHA la Politique de confidentialité et les Conditions d’utilisation de Google s’appliquent.
Obtenir un prêt immobilier au meilleur taux ?

En poursuivant votre navigation sans modifier vos paramètres, vous acceptez l'utilisation de cookies susceptibles de réaliser des statistiques de visite. Cliquez ici pour plus d'informations