Bénéficiez des services de nos partenaires locaux soigneusement sélectionnés
pour vous accompagner dans votre parcours d'achat immobilier

Grand annecy, projet de villa individuelle sur terrain constructible

— Annecy 74000 —
310 000 €
800 m²
parkingbalcon/terrassejardin

Nos partenaires locaux
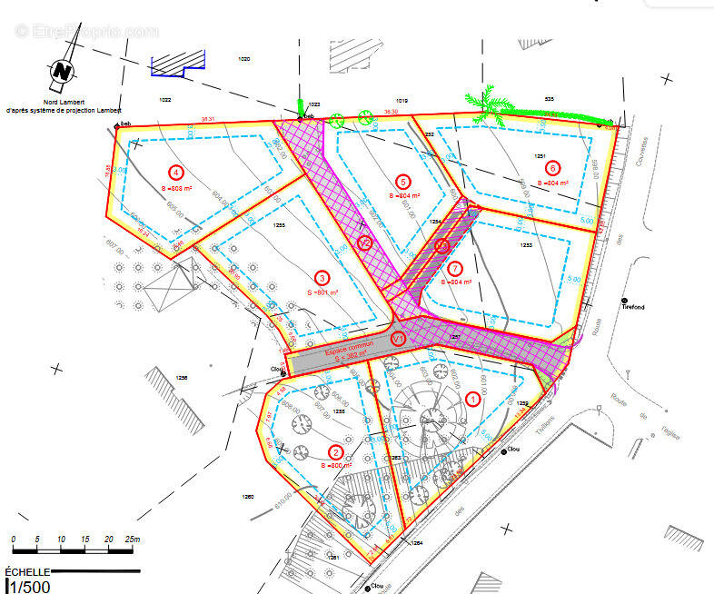
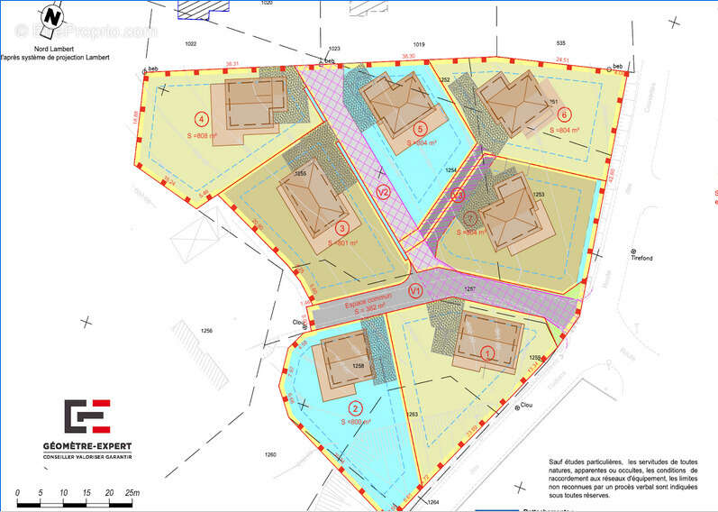
Terrain constructible avec projet de villa, 3 lots à la vente dans un environnement au calme, à 15 minutes d'Annecy, sur l'axe Annecy / Genève.
Prix pour un terrain à partir de 310.000€ ttc, dans un lotissement de 7 villas contemporaines au total, sur des parcelles de 800 m2 minimum / lot, vue sur le Parmelan et les montagnes du tour du lac. Chaque terrain sera vendu avec un projet de villa de 4 chambres dont une au rdc, d'une grande pièce de vie ouverte sur le jardin et sur un balcon , d'un grand sous sol comprenant un garage, un local technique et une cave. Ce projet de villa est modifiable et personnalisable, il rempli toutes les conditions en matière de qualité de prestations et de confort où tout est conçu pour votre bien être.
Nous vous mettrons en contact avec le constructeur des villas; le prix / villa terminée, à partir de 727.000€ ttc comprenant, le terrain, la villa et les frais de notaire.
Plus d'informations, visite du terrain, nous consulter.
Les informations sur les risques auxquels ce bien est exposé sont disponibles sur le site Géorisques : www.georisques.gouv.fr
Voir plus

Référence: 5639
Honoraires à la charge du vendeur.
Barème des honoraires

Prêt immobilier

Vous souhaitez connaître votre capacité d’emprunt et trouver le meilleur crédit immobilier ?
Réaliser une simulation gratuite

Terrain à ANNECY
Terrain à ANNECY
Terrain à ANNECY
Terrain à ANNECY
Terrain à ANNECY
Terrain à ANNECY
Terrain à ANNECY
Terrain à ANNECY
Ce site est protégé par reCAPTCHA la Politique de confidentialité et les Conditions d’utilisation de Google s’appliquent.
Obtenir un prêt immobilier au meilleur taux ?

En poursuivant votre navigation sans modifier vos paramètres, vous acceptez l'utilisation de cookies susceptibles de réaliser des statistiques de visite. Cliquez ici pour plus d'informations