Vente maison 8 pièces de 245m² - 83910 pourrières

— Pourrieres 83910 —
950 000 €
245 m² / 4 000 m²
8 pièces
jardin

Casavo vous propose à la vente en EXCLUSIVITÉ à l'entrée du charmant village de Pourrières, cette belle maison de 245 m², sur un terrain de 4000 m² arboré et clôturé.
Vous serez immédiatement séduit par la vue imprenable sur la Sainte-Victoire et les vignes.
La maison, exposée sud/ouest et sur 2 niveaux, se compose de la façon suivante :
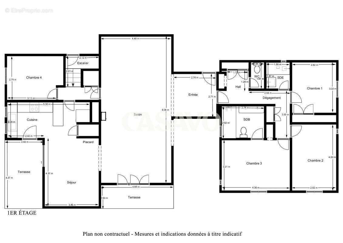
Au premier niveau, un hall d'entrée avec patio, un grand séjour avec double cheminée, une salle à manger avec cuisine ouverte et une première chambre.
Un espace nuit avec une salle d'eau, un WC séparé, trois chambres dont une suite parentale avec salle de bains et WC.
Au niveau inférieur : Un premier espace avec une chambre, une salle de bains, une buanderie et un WC séparé. Un second espace avec grand dressing, un bureau et une chambre avec entrée indépendante.
À l'extérieur, deux belles terrasses au sud et à l'ouest, une grande piscine au sel de 12 X 6M avec sa cuisine et salon d'été, terrain de pétanque.
Garage automatisé de 24 m².
Idéalement située à 25 minutes d'Aix-en-Provence, 10 minutes de Saint-Maximin et 40 minutes de la Gare TGV d'Aix.
Le village typique provençal de Pourrières à 1,5 Km vous offrira ses commerces & écoles.
Coup de cœur assuré pour cette villa aux beaux volumes et lumineuse, nichée entre la Sainte-Victoire et le Mont Aurélien.
À visiter sans plus attendre !

Taxe foncière : 2682 € par an
Ce bien est commercialisé par Casavo.

-------------------------------------------------------------------------------------------------
Casavo offers for sale in EXCLUSIVITY at the entrance of the charming village of Pourrières, this beautiful house of 245 m 2, on a plot of 4000 m2 wooded and fenced.
You will immediately be seduced by the breathtaking view of the Sainte-Victoire and the vineyards.
The house, facing south/west and on 2 levels, is composed as follows:
On the first level, an entrance hall with patio, a large living room with double fireplace, a dining room with open kitchen and a first bedroom.
A sleeping area with a bathroom, a separate toilet, three bedrooms including a master suite with bathroom and toilet.
On the lower level: A first space with a bedroom, a bathroom, a laundry room and a separate toilet. A second space with large dressing room, an office and a bedroom with independent entrance.
Outside, two beautiful terraces to the south and west, a large salt pool of 12 X 6M with its kitchen and summer lounge, pétanque field.
Automated garage of 24 m 2.
Ideally located 25 minutes from Aix-en-Provence, 10 minutes from Saint-Maximin and 40 minutes from the TGV station of Aix.
The typical Provencal village of Pourrières at 1.5 km will offer you its shops & schools.
Heart stroke assured for this villa with beautiful volumes and bright, nestled between the Sainte-Victoire and Mont Aurélien.
Let's visit !

Property tax: 2682 € per year
This property is marketed by Casavo.

Intéressé par ce bien ? Plus d'informations sur le site de Casavo.
Voir plus

Référence: 39581
Honoraires à la charge du vendeur.
DPE
A
B
C
D
E
F
G
GES
A
B
C
D
E
F
G

Prêt immobilier

Vous souhaitez connaître votre capacité d’emprunt et trouver le meilleur crédit immobilier ?
Réaliser une simulation gratuite

Maison à POURRIERES
Maison à POURRIERES
Maison à POURRIERES
Maison à POURRIERES
Maison à POURRIERES
Maison à POURRIERES
Maison à POURRIERES
Maison à POURRIERES
Maison à POURRIERES
Maison à POURRIERES
Maison à POURRIERES
Maison à POURRIERES
Maison à POURRIERES
Maison à POURRIERES
Maison à POURRIERES
Maison à POURRIERES
Maison à POURRIERES
Maison à POURRIERES
Maison à POURRIERES
Maison à POURRIERES
Ce site est protégé par reCAPTCHA la Politique de confidentialité et les Conditions d’utilisation de Google s’appliquent.
Obtenir un prêt immobilier au meilleur taux ?

En poursuivant votre navigation sans modifier vos paramètres, vous acceptez l'utilisation de cookies susceptibles de réaliser des statistiques de visite. Cliquez ici pour plus d'informations