Bénéficiez des services de nos partenaires locaux soigneusement sélectionnés
pour vous accompagner dans votre parcours d'achat immobilier

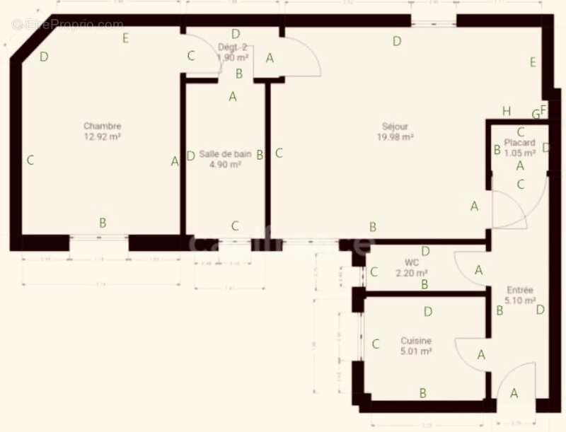
Appartement à vendre 2 pièces, 53 m2, vincennes (94), avenue de la république, 1er étage avec ascenseur, cave et au calme

— Vincennes 94300 —
410 000 €
53 m²
2 pièces
ascenseur

Nos partenaires locaux
Situé avenue de la République, à proximité immédiate des commerces et des transports, cet appartement se trouve à seulement 8 minutes à pied du RER A Vincennes (100 m), 6 minutes du métro ligne 1 Bérault (440 m) et 12 minutes de Château de Vincennes (610 m).
Dans un bel immeuble bien entretenu avec ascenseur, ce 2 pièces de 53 m² propose une configuration optimisée :
entrée avec grand rangement, cuisine séparée, WC indépendant, salle d'eau, séjour de 20 m² et chambre avec cheminée.
L'appartement donne sur une cour dégagée, très calme et agréable, offrant un véritable havre de paix en plein cœur de ville.
Travaux à prévoir: fenêtres à changer, cuisine à aménager.
Chauffage collectif. Une cave et un local vélo/poussette complètent ce bien.
Vendu libre.
Potentiel locatif estimé : environ 1 600 €/mois.
Contactez-moi afin que je vous présente tous les crirères et atouts de l'appartement.
Nombre de lots de la copropriété : 21, Montant moyen annuel de la quote-part de charges (budget prévisionnel)(chauffage, eau froide, ascenseur, entretien des communs) : 2236€ soit 186€ par mois. Les honoraires sont à la charge du vendeur.
Logement à consommation énergétique excessive : classe G
Les informations sur les risques auxquels ce bien est exposé sont disponibles sur le site Géorisques : www. georisques. gouv. fr.

Réseau Immobilier CAPIFRANCE - Votre agent commercial (RSAC N°452 571 805 - Greffe de CRETEIL) Virginie VINCENT Entrepreneur Individuel [Coordonnées masquées] - Réf.910342
Voir plus

Référence: 340933084217
Bien en copropriété. Nombre de lots : 21. Charges de copropriété : 186 €.
Honoraires à la charge du vendeur.
DPE
A
B
C
D
E
F
G
GES
A
B
C
D
E
F
G

Prêt immobilier

Vous souhaitez connaître votre capacité d’emprunt et trouver le meilleur crédit immobilier ?
Réaliser une simulation gratuite

Appartement à VINCENNES
Appartement à VINCENNES
Appartement à VINCENNES
Appartement à VINCENNES
Appartement à VINCENNES
Appartement à VINCENNES
Appartement à VINCENNES
Appartement à VINCENNES
Appartement à VINCENNES
Appartement à VINCENNES
Appartement à VINCENNES
Appartement à VINCENNES
Appartement à VINCENNES
Appartement à VINCENNES
Appartement à VINCENNES
Appartement à VINCENNES
Appartement à VINCENNES
Appartement à VINCENNES
Ce site est protégé par reCAPTCHA la Politique de confidentialité et les Conditions d’utilisation de Google s’appliquent.
Obtenir un prêt immobilier au meilleur taux ?

En poursuivant votre navigation sans modifier vos paramètres, vous acceptez l'utilisation de cookies susceptibles de réaliser des statistiques de visite. Cliquez ici pour plus d'informations